Eladó lakás Nyíregyháza, Belváros, 43 630 000 Ft

Leírás

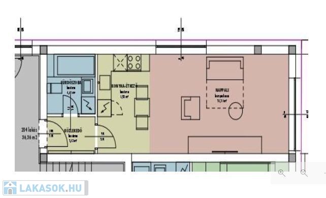
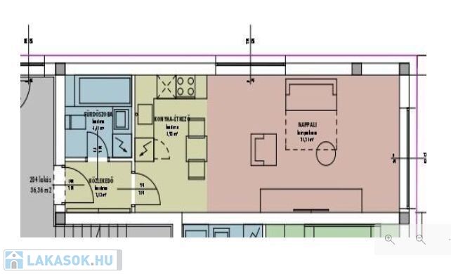
Belváros szívében Kossuth utcán eladásra kínálok egy 36,36 nm alapterületű 1 szobás garzonlakást mely 2026 nyarán átadásra kerülő 4 szintes liftes társasház első emeletén található.Az ingatlan A + besorolású,Prémium kivitelezés – hőszivattyús fűtés-hűtés, padlófűtés, 3 rétegű nyílászárók,Belső, zöld udvar – játszótérrel, pihenőterekkel a nyugodt életért,parkolás megvásárolható teremgarázsban megoldott melynek ára mérettől függően 7,8 M + Áfa tól elérhető.Ez az utolsó ilyen méretű lakás ne szalassza el a lehetőséget ! Az ingatlan azonosítója: 97478Érdeklődni: +36209268433 Az ingatlan azonosítója: 97478 Érdeklődni: +36209268433

Lakás részletei

Ár: 43 630 000 Ft
Méret: 37 négyzetméter
Azonosító: 11590500
Irodai azonosító: 97478
Városrész: Belváros
Emelet: 1. emelet
Építőanyag: Tégla
Fűtés jellege: Cirkó
Ingatlan állapota: Épülő
Építési év: Új építésű
Egész szobák: 1

Egyéb jellemzők

  • Lift

Így keressen lakást négy egyszerű lépésben. Csupán 2 perc, kötelezettségek nélkül!

Szűkítse a lakások
listáját
Válassza ki a megfelelő
lakást
Írjon a hirdetőnek
Várjon a visszahívásra