Eladó lakás Nyíregyháza 40 600 000 Ft

Leírás

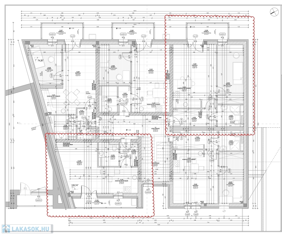
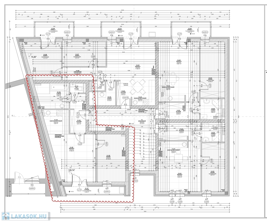
Nyíregyháza belváros közeli részén, a Debreceni út közelében eladásra kínálok új építésű társasházi lakásokat. Az ingatlanok az első és a második emeleten találhatók és 15 cm-es külső hőszigeteléssel és 3 rétegű műanyag nyílászárókkal épülnek. A burkolatok és a beltéri ajtók kiválasztása az új tulajdonosokra várnak.
Várható átadás 2026. 11. 30.
Első emeleti lakások:

37,74 m2, 1 szoba+ nappali, 5,7 m2-es erkély - 40,6 M Ft
36,02 m2, 1 szoba + nappali, 5,7 m2-es erkély - 38,9 M Ft
43,61 m2, 1 szoba + nappali, 5,7 m2-es erkély - 46,46 M Ft
38,6 m2, 1 szoba + nappali, nincs erkély - 38,6 M Ft

Második emeleti lakások:

48,34 m2, 1 szoba + nappali, 5,7 m2-es erkély - 50,75 M Ft
62,02 m2. 2 szoba + nappali, 5,7 m2-es erkély - 67,72 M Ft
43,61 m2, 1 szoba + nappali, 5,7 m2-es erkély - 46,46 M Ft
38,6 m2, 1 szoba + nappali, nincs erkély - 38,6 M Ft

Garázsok:

2 db 28 m2-es garázs - 12,5 M Ft/garázs
1 db 17 m2-es garázs - 8,5 M Ft

Gépkocsi beállók:

6 db beálló 2,9 M Ft/db

Ingatlanirodánk több éves tapasztalattal, megbízható háttérrel és teljes körű ügyintézéssel áll az Ön rendelkezésére a teljes értékesítési folyamat során a megtekintéstől a sikeres adásvételig.Amennyiben további információra lenne szüksége, vagy szeretné megtekinteni az ingatlant, várom hívását! Jöjjön és nézze meg!Az ingatlan azonosítója: 69692Érdeklődni: 06302669818 Az ingatlan azonosítója: 69692 Érdeklődni: 06302669818

Lakás részletei

Ár: 40 600 000 Ft
Méret: 40 négyzetméter
Azonosító: 11597235
Irodai azonosító: 69692
Emelet: 1. emelet
Építőanyag: Tégla
Fűtés jellege: Cirkó
Ingatlan állapota: Épülő
Építési év: Új építésű
Egész szobák: 1

Egyéb jellemzők

  • Lift

Így keressen lakást négy egyszerű lépésben. Csupán 2 perc, kötelezettségek nélkül!

Szűkítse a lakások
listáját
Válassza ki a megfelelő
lakást
Írjon a hirdetőnek
Várjon a visszahívásra