Eladó lakás Nyíregyháza 40 700 000 Ft

Leírás

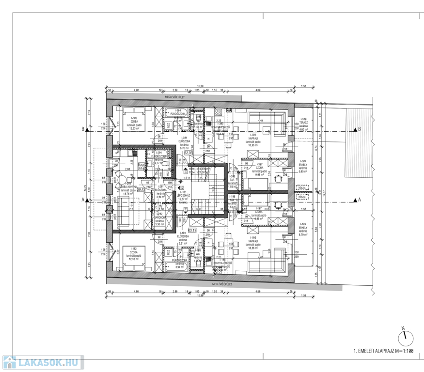
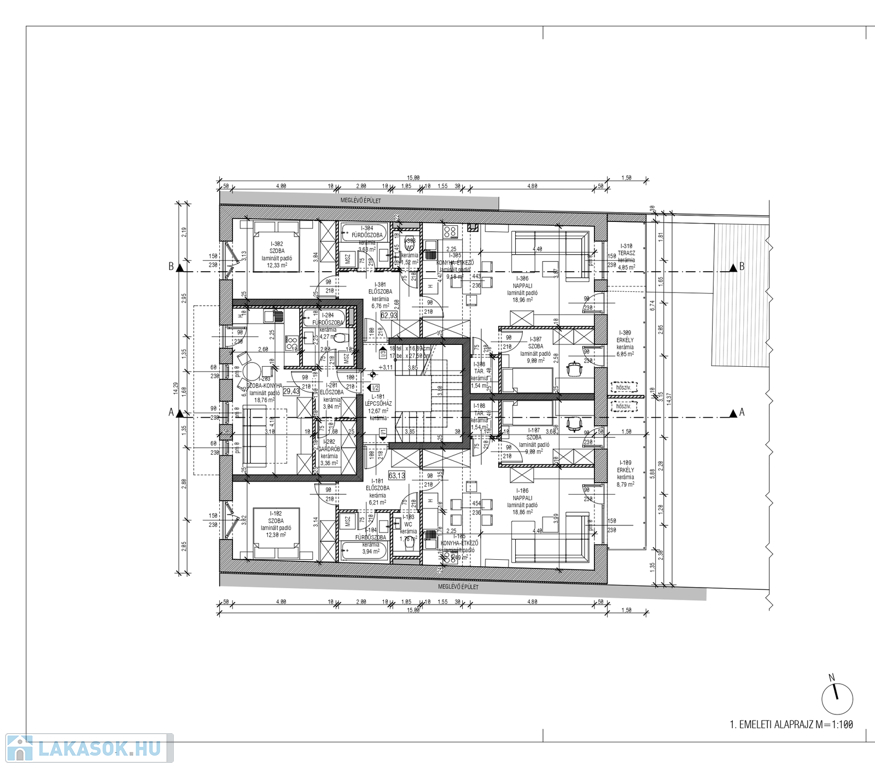
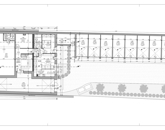
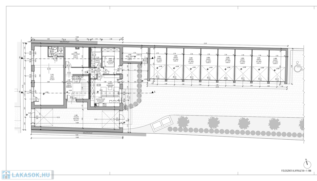
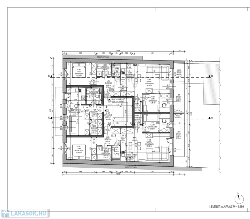
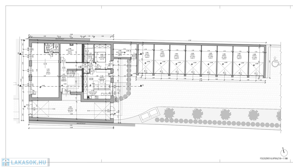
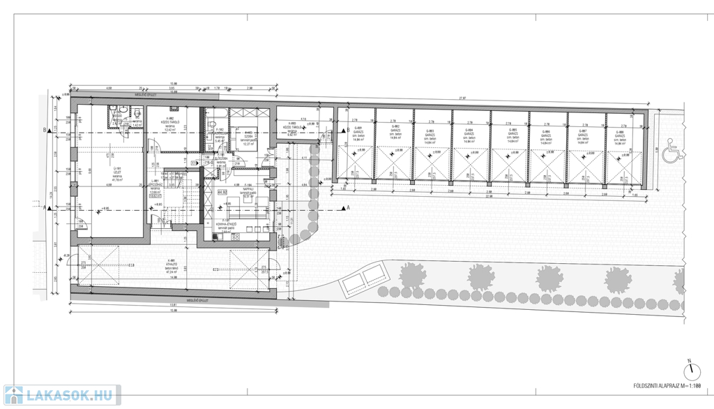
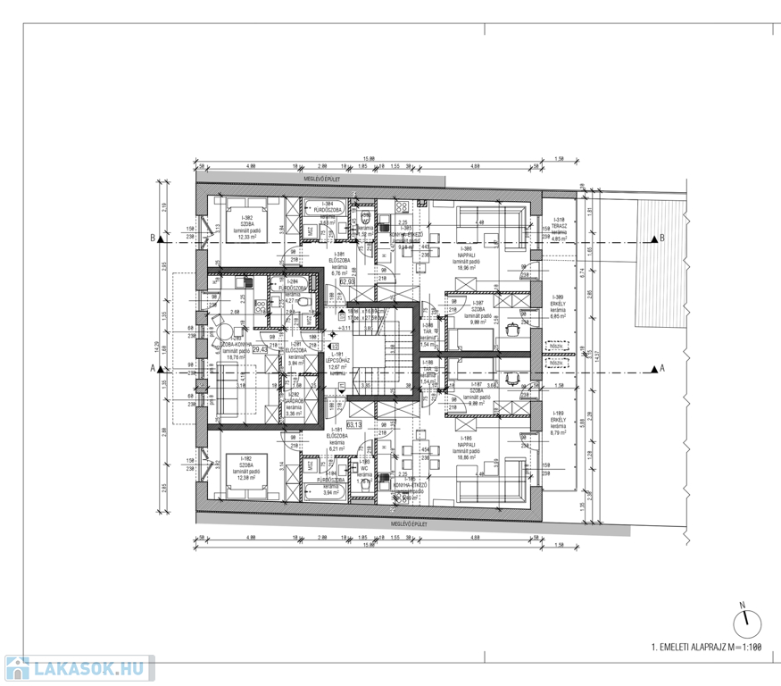
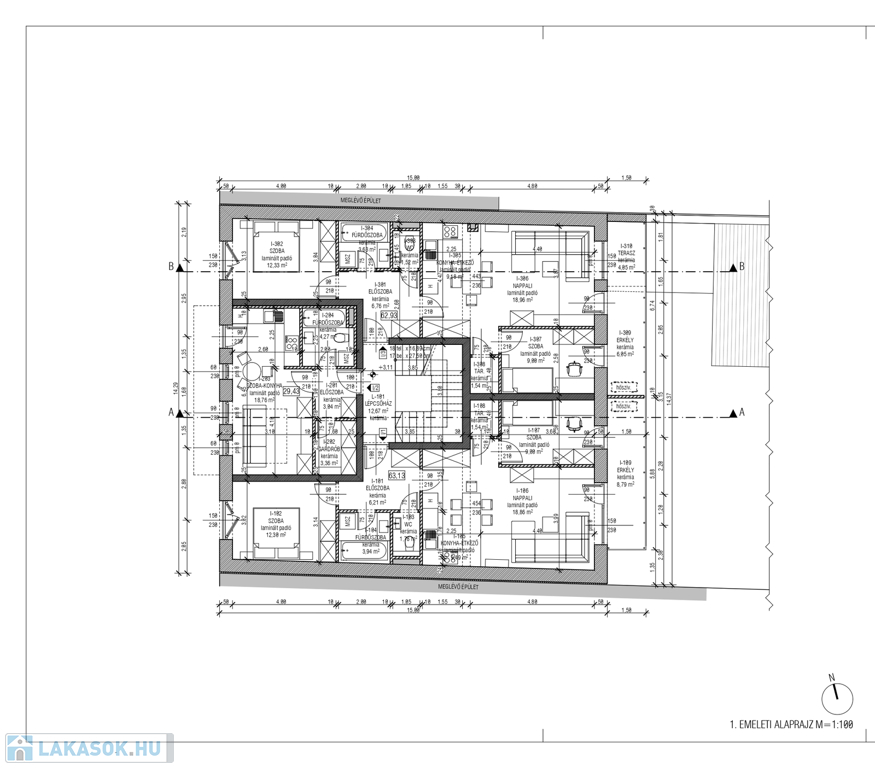
Nyíregyháza Belváros csendes utcájában ÚJ építésű, 7 lakásos társasházban, 29,43 nm - 63,12 nm-ig, 1 szobás, 1 + 1 és 2 szoba + nappali étkező konyhával, külön fürdő és wc, választható járólap és laminált parketta burkolattal, egyedi gáz kondenzációs kazánnal padló fűtéssel, 3 réteg üvegezésű műanyag nyílászárókkal, 50-es Viablokk falazattal, minőségi szaniterekkel, minden lakásban inverteres klímával lakások, garázsok illetve autóbeállók megvásárolhatóak, számos referenciával rendelkező minőségi kivitelezőtől 2026 év végi átadással.
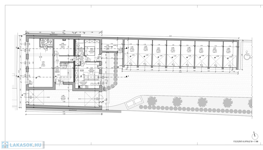
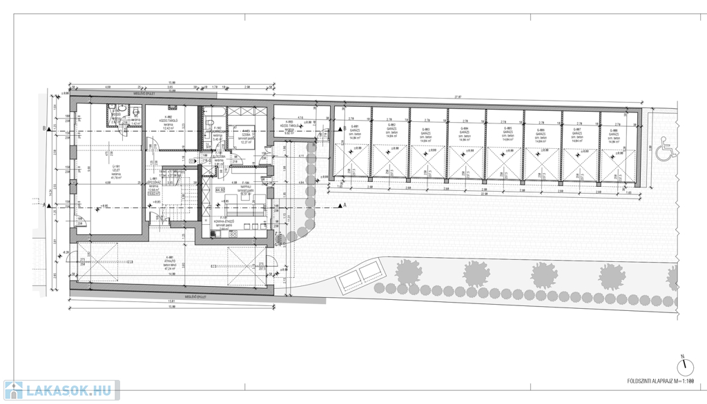
Garázsok elérhetőek: 9.300.000 Ft + Áfa
Parkolóhelyek elérhetőek: 3.300.000 Ft
Ha felkeltette érdeklődésedet az ingatlanok bármelyike, keressen bizalommal. Az ingatlan azonosítója: 98278Érdeklődni: +36304092510 Az ingatlan azonosítója: 98278 Érdeklődni: +36304092510

Lakás részletei

Ár: 40 700 000 Ft
Méret: 30 négyzetméter
Azonosító: 11576598
Irodai azonosító: 98278
Emelet: 1. emelet
Építőanyag: Tégla
Fűtés jellege: Cirkó
Ingatlan állapota: Épülő
Egész szobák: 1

Egyéb jellemzők

  • Lift

Így keressen lakást négy egyszerű lépésben. Csupán 2 perc, kötelezettségek nélkül!

Szűkítse a lakások
listáját
Válassza ki a megfelelő
lakást
Írjon a hirdetőnek
Várjon a visszahívásra