Eladó lakás Nyíregyháza, Belváros, 38 600 000 Ft

Leírás

Nyíregyháza belvárosának egyik kedvelt, nyugodt utcájában új építésű társasházi lakások leköthetők, 2026. novemberi átadással.
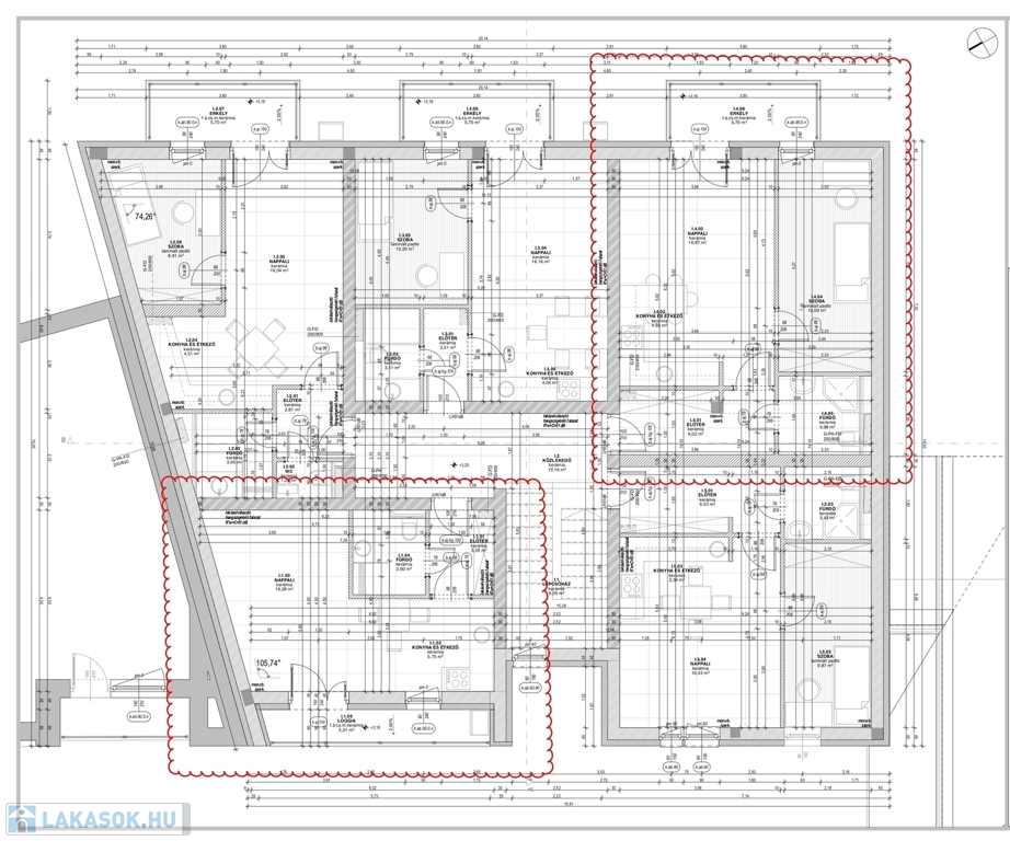
Elérhető lakások:
1. emelet


37,74 nm + 5,7 nm erkély | N+1 szoba | Ár: 40,59 M Ft


36,02 nm + 5,7 nm erkély | N+1 szoba | Ár: 38,87 M Ft


43,61 nm + 5,7 nm erkély | N+1 szoba | Ár: 46,46M Ft


38,6 nm (erkély nélkül) | N+1 szoba | Ár: 38,6 M Ft


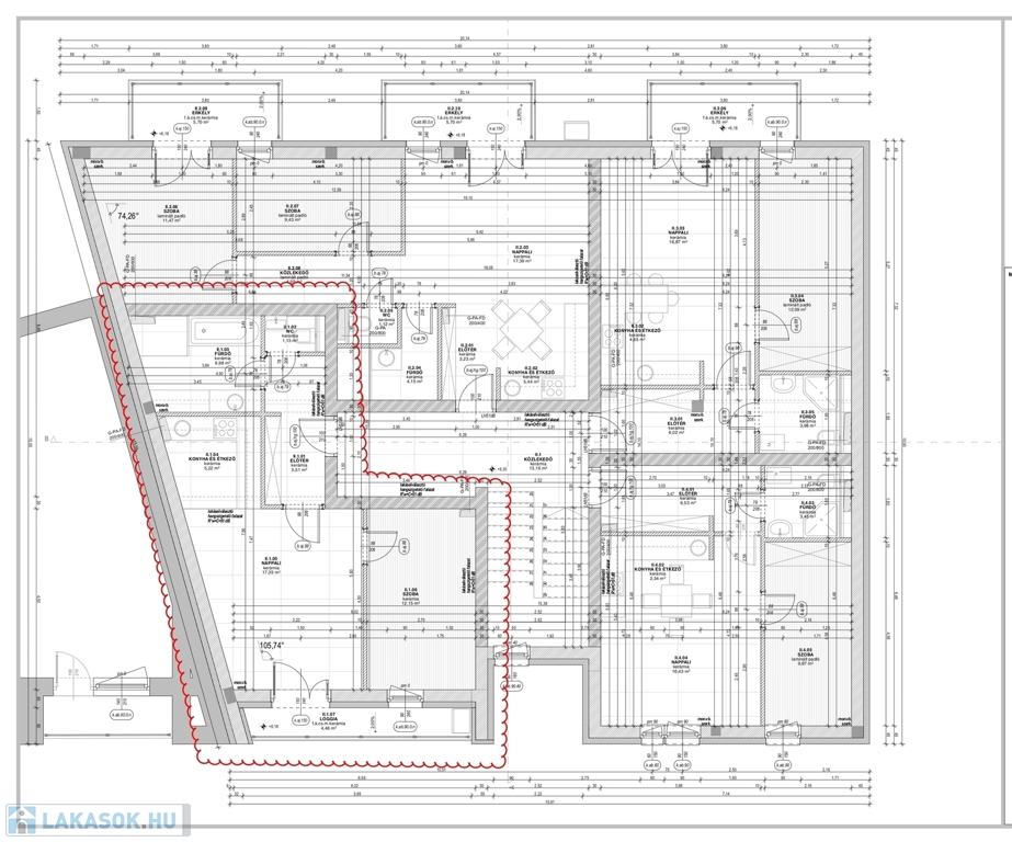
2. emelet


48,34 nm + 4,46 nm erkély | N+1 szoba | Ár: 50,57M Ft


62,02 nm + 2 db 5,7 nm-es erkély | Ár: 67,72M Ft


43,61 nm + 5,7 nm erkély | N+1 szoba | Ár: 46,46 M Ft


38,6 nm (erkély nélkül) | N+1 szoba | Ár: 38,6 M Ft


Műszaki tartalom:


Porotherm téglából épülő, 10 lakásos társasház


15 cm vastag hőszigetelés


3 rétegű műanyag nyílászárók, elektromos redőny előkészítéssel


Kondenzációs gázkazán, padlófűtéses hőleadással


Lakásonként 1 db hőszivattyús klíma


Burkolatok és beltéri ajtók szabadon választhatók


Elektromos kapuval megközelíthető belső udvar


Megvásárolható parkolási lehetőségek:


Belső udvari parkoló: 2.900.000 Ft / db


2 állásos garázs: 12,5 M Ft


1 állásos garázs:  8,5 M Ft


Az építkezés már elkezdődött, a lakások 20% előleggel foglalhatók.Várható használatbavétel: 2026. november.Az ingatlan azonosítója: 99666Érdeklődni: +36709442086 Az ingatlan azonosítója: 99666 Érdeklődni: +36709442086

Lakás részletei

Ár: 38 600 000 Ft
Méret: 38 négyzetméter
Azonosító: 11597007
Irodai azonosító: 99666
Városrész: Belváros
Emelet: 1. emelet
Építőanyag: Tégla
Fűtés jellege: Cirkó
Ingatlan állapota: Épülő
Építési év: Új építésű
Egész szobák: 1

Egyéb jellemzők

  • Lift

Így keressen lakást négy egyszerű lépésben. Csupán 2 perc, kötelezettségek nélkül!

Szűkítse a lakások
listáját
Válassza ki a megfelelő
lakást
Írjon a hirdetőnek
Várjon a visszahívásra