Eladó lakás Nagyszentjános 28 000 000 Ft

Leírás


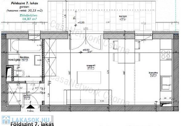
Eladásra kínálom az alábbi lakást Nagyszentjánoson! A megyeszékhely felől mind az M1-es, mind pedig az 1-es főúton el lehet érni ezt a nyugodt, barátságos települést. A lakások csendes, idilli környezetben helyezkednek el. Tökéletes választás a családosoknak, egyedülállóknak, fiatal pároknak, és mindazoknak, akiknek elege van az urbanizáció negatív hatásaiból, otthonát pihenésre is szeretné használni, de kiélvezné a nagyváros közelségét és lehetőségeit. L7-es lakás jellemzői:A lakás hamarosan kulcsrakész és költözhető!Ára: bruttó 26.250.000, Ft földszinti garzon L7 lakás, 30,23 m2-es a lakáshoz 18,67 m2 saját, önálló kert tartozik központi hőszivattyús rendszer AJÁNDÉK gépkocsibeálló AJÁNDÉK fürdőszobabútorTÁROLÓ minden lakáshozA lakás Safari Smart Home okosotthon rendszerrel kerül átadásra melynek tartalma: - aplikáció a telefonra, - üvegfelületű, érintőpaneles desing kapcsolók,- 5 db jelenlét és fényérzékelő szenzorok, - 1 db nyitásérzékelő szenzor,- 1 db hőmérséklet és páratartalom mérő,-  1 db tűz/füst érzékelőFontos tudni, a lakás átadása után a Safari Smart Home az Ön igényeire szabja a rendszert.  KULCSRAKÉSZ kivitelezés az árban Igényes kivitelezés, minőségi anyagok! Megbízható kivitelező, megtekinthető referencia házakkal, lakásokkal!Irodánk kínálatában további lakások, telkek is megtalálhatóak, amennyiben felkeltette érdeklődését keresse ingatlan referensét: 06702708606 - Sári Ábel

Lakás részletei

Ár: 28 000 000 Ft
Méret: 30 négyzetméter
Azonosító: 10945317
Irodai azonosító: 164600570
Emelet: Földszint
Építőanyag: Tégla
Ingatlan állapota: Kitűnő
Egész szobák: 1

Így keressen lakást négy egyszerű lépésben. Csupán 2 perc, kötelezettségek nélkül!

Szűkítse a lakások
listáját
Válassza ki a megfelelő
lakást
Írjon a hirdetőnek
Várjon a visszahívásra