Eladó lakás Nagykanizsa 49 900 000 Ft

Leírás

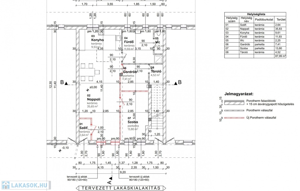
Zala vármegye, Nagykanizsa 95m2-es földszinti lakás eladó. A település északi városrészén található, a 2000-es évek elején épült ingatlan végső kialakítása a leendő tulajdonos igényei szerint történik, a munkálatokat az ár tartalmazza. A lakás melegéről gázkazán gondoskodik. A szigetelt, 8 lakásos társasházi ingatlanhoz igény esetén kertkapcsolat és gépjárműbeálló is tartozik. Lehetőség van garázs vásárlására is 3,5M Ft-ért. A tehermentes ingatlan közös költsége barátságos, 13.000Ft. A lakás megvételéhez – igény esetén – díjmentesen finanszírozási megoldásokkal szolgálok.

Lakás részletei

Ár: 49 900 000 Ft
Méret: 95 négyzetméter
Azonosító: 11573120
Irodai azonosító: 343474
Emelet: Földszint
Építőanyag: Tégla
Fűtés jellege: Cirkó
Ingatlan állapota: Kitűnő
Komfort fokozat: Összkomfort
Egész szobák: 3

Egyéb jellemzők

  • Erkély
  • Lift
  • Kertkapcsolat

Így keressen lakást négy egyszerű lépésben. Csupán 2 perc, kötelezettségek nélkül!

Szűkítse a lakások
listáját
Válassza ki a megfelelő
lakást
Írjon a hirdetőnek
Várjon a visszahívásra