Eladó lakás Nagykanizsa 49 900 000 Ft

Leírás

Tervezze meg új otthonát, és vegye át kulcsrakészen!

Nagykanizsa északi városrészében 2002-ben épült lakóparkban, sorházi jellegű saját zöldterülettel rendelkező, földszinti 90 nm-es ingatlan vált eladóvá.
A társasház, amelyben 11 lakás épült fel, elektromos kapun keresztül közelíthető meg. (Zárt udvar)
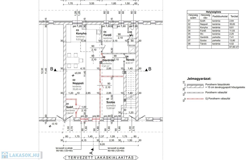
A hirdetésben szereplő ingatlan jelenleg műhelyként funkcionál, melyet a tulajdonosa szeretne lakássá alakítani és lakásként értékesíteni a vevő igényei szerint.
Erről készült átalakítási terv, amely még módosítható a hirdetésben szerepel.
A kivitelezés befejezése után a lakássá minősítés elvégezhető és a vásárláshoz hitel is felvehető.
Parkolás a zárt udvarban lehetséges, de igény szerint garázs is vásárolható a lakás hoz melynek ára plusz 3.9 millió Ft.
Amennyiben egy csendes nyugodt környezetben szeretne olyan lakást, amelyet a saját ízlése szerint alakítanak ki, akkor ez az ingatlan kiváló választás lehet.
FONTOS: A hirdetésben szereplő ár a teljes kivitelést tartalmazza!!!
Bővebb információkért hívjon!
Iroda: Nagykanizsa Platán sor 7
(További képekért és információkért kérem hívjon!)

Lakás részletei

Ár: 49 900 000 Ft
Méret: 90 négyzetméter
Azonosító: 11568030
Irodai azonosító: 939917
Építőanyag: Tégla
Fűtés jellege: Cirkó
Ingatlan állapota: Kitűnő
Komfort fokozat: Összkomfort
Egész szobák: 4
Nappalik: 1

Egyéb jellemzők

  • Erkély
  • Garázs
  • Klíma
  • Lift
  • Pince
  • Kertkapcsolat

Így keressen lakást négy egyszerű lépésben. Csupán 2 perc, kötelezettségek nélkül!

Szűkítse a lakások
listáját
Válassza ki a megfelelő
lakást
Írjon a hirdetőnek
Várjon a visszahívásra