Eladó lakás Nagykanizsa 39 900 000 Ft

Leírás

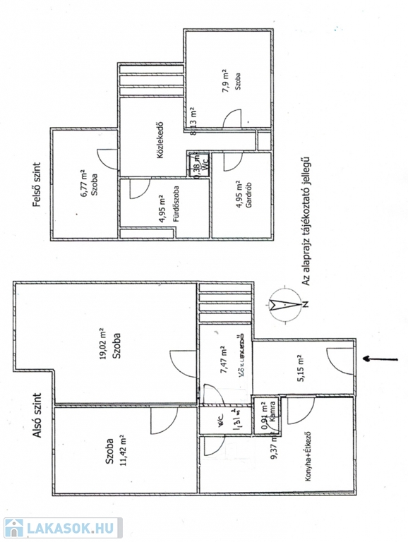
Eladó kétszintes, 89 nm-es, 3 szoba + nappalis lakás Nagykanizsa belvárosában!

Ha vágyik egy új otthonra Nagykanizsa központjában, akkor ez a kivételes lehetőség Öné lehet! Kínálunk Önnek egy 89 nm-es, 3 szobás + nappalis lakást a város szívében, ahol minden kényelmi szolgáltatást a közelben megtalál.

Az ingatlan egy 1990-ben épült társasház harmadik emeletén található, ahonnan a tágas, napfényes déli fekvésű nappaliból csodás panoráma tárul elénk. Az ingatlanban 3 éve történt felújítás, melynek során a felső szint laminált parkettája cserélve lett, a wc-be új burkolat és szaniter került, a konyha és előszoba padlóburkolata szintén megújult. A nappali nyugati oldalát 7 mm-es grafitos hőszigeteléssel látták el. A konyha keleti fekvésű, melyhez kamra is tartozik. Az ablakok még az eredetiek, a bejárati ajtó azonban cserélve lett.

A lakás cirkó fűtését egy hangulatos fatüzelésű kandalló látja el, a meleg vizet Ariston villanybojler állítja elő. A ház udvarában gépkocsi beállási lehetőség adott, ide biztonságos elektromos kapun keresztül juthatunk. A közös költség 20.754 forint.

Ez a lakás páratlan helyen található, és egy új élet lehetőségét kínálja. Kisebb lakást értékegyeztetéssel beszámítunk. Vegye fel velünk a kapcsolatot, örömmel adunk részletes információkat és szervezünk időpontot, hogy megtekinthesse ezt a kényelmes otthont.

Referencia szám: HK-4537354-NOK

Lakás részletei

Ár: 39 900 000 Ft
Méret: 89 négyzetméter
Azonosító: 11323162
Irodai azonosító: HK-4537354-4537354
Emelet: 3. emelet
Építőanyag: Tégla
Fűtés jellege: Egyéb
Ingatlan állapota:
Komfort fokozat: Összkomfort
Építési év: 21-50 éves
Kilátás: utcai
Egész szobák: 4

Egyéb jellemzők

  • Kocsibeálló

Térkép


Így keressen lakást négy egyszerű lépésben. Csupán 2 perc, kötelezettségek nélkül!

Szűkítse a lakások
listáját
Válassza ki a megfelelő
lakást
Írjon a hirdetőnek
Várjon a visszahívásra