Eladó lakás Mosonmagyaróvár 58 800 000 Ft

Leírás


Vásárolj most újépítésű lakást kedvező áron Mosonmagyaróvár kiváló helyén.

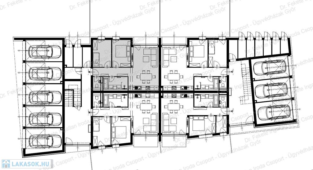
Csak 17 db lakás, 2 lépcsőházból történő megközelítés.

Zárt udvari parkolás, igény esetén garázs vásárlási lehetőség.

A meghirdetett ingatlan földszinti, kertkapcsolatos

Lakótér 58,86 nm, nappali + 2 szobás + 4 nm-es  terasszal, valamint 54,4 nm-es kerttel rendelkező lakás.

A földszinten, csak 4 db ingatlan készül! Fűtéskész átadásra 2026 év végén kerül sor.

 

A vételár tartalma:

3 rétegű 6 kamrás műanyag nyílászárók (KÖMMERLING), kívül antracit, belül fehér színben.

Antracit színű alumínium könyöklő külső oldalon.

Elektromos alumínium redőny kiépítése

Az épületek fűtését a gépészeti helyiségben elhelyezett gázkazán és a lapostetőre telepített levegő-víz hőszivattyúk biztosítják.

A hőleadás módja: padlófűtés

Klíma előkészítés

A lakások részére önálló lakásfogadó blokkot kerül kialakításra, melyben a hidegvíz és melegvíz fogyasztásmérők mellett a hőmennyiségmérő is helyet kap.

 

A lakásokban a nappaliban önálló hűtő-fűtő rendszerhez alkalmas termosztát kerül elhelyezésre, mely a lakás önállóan szabályozott működtetését is biztosítja.

Az egyes helyiségek egyedi igényeit a lakáshoz tartozó padlófűtés osztón található kézi beszabályozó szelepek állításával lehet beállítani

 

Villany vezetékek kiépítése, dobozok elhelyezése előre leegyeztetett pozícióba.

Kábel TV előkészítés. (Vidanet)

Az épület teljes külső szigetelése, homlokzati színezése (BAUMIT Silikon Top).

Lábazatra, sötétszürke színű homlokzati színvakolat (BAUMIT Silikon Top).

Belső felületkezelés: belső gépi vakolat.

 

Telekhatár mentén kerítés készítése. Hátsó oldalon elemes beton kerítés. Utcafronton és oldalhatáron lévő kerítések 3D-s kivitelben készülnek, antracit színben.

Utcafronton betonkerítés készítése az épülettel megegyező homlokzati színezéssel, látványterven látható módon készül.

 

Épület körüli térkő burkolat kiépítése építész terveknek megfelelően, Leier Piazza betonszürke színben, 6 cm vastagságban.

Telken belül biztosított parkolóknál Leier Verde gyeprács kerül beépítésre 10 cm vastagságban.

Zárt udvari parkoló:  + 1 650 000 Ft / db (kötelező tétel)

Garázs ára: nettó 7.290.000 br.: 9.258.300 Ft /db (opcionális)

 

Szerkezeti anyagok:

- Alap szerkezete: Sávalap

- Külső falazat: LEIERTHERM N+F 30-as falazó elem

- Lakáselválasztó szerkezet: Silka HM 300 NF+GT

- Térelválasztó szerkezetek: Leier Leiertherm 10/50 N+F válaszfaltégla

- Belső felületképzés: mész-cement vakolat + belső glettelés.

- Padló szigetelése: 12 cm vtg. AUSTROTHERM AT-N100 hőszigetelő lemez.

- Külső fal szigetelés: 15 cm vtg. AUSTROTHERM AT-H80 hőszigetelő lemez.

 

Hozz egy jó döntést, és hívj! Hartmann-né Viki Tel.: +36 20 481 3369

 

Lakás részletei

Ár: 58 800 000 Ft
Méret: 60 négyzetméter
Azonosító: 11607462
Irodai azonosító: 210600613
Emelet: Földszint
Építőanyag: Tégla
Fűtés jellege: Egyéb
Ingatlan állapota: Kitűnő
Komfort fokozat: Összkomfort
Építési év: Új építésű
Egész szobák: 3

Egyéb jellemzők

  • Lift

Így keressen lakást négy egyszerű lépésben. Csupán 2 perc, kötelezettségek nélkül!

Szűkítse a lakások
listáját
Válassza ki a megfelelő
lakást
Írjon a hirdetőnek
Várjon a visszahívásra