Eladó lakás Miskolc 67 700 000 Ft

Leírás


 

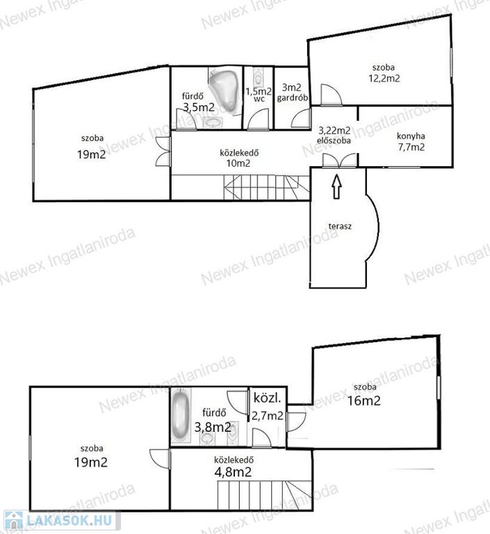
Eladásra kínálunk egy bruttó 110 m²-es, klimatizált, gáz-központi fűtéses, téglaépítésű, szigetelt lakást a közkedvelt Tulipán tömbben.

 

Ez a KÜLÖNLEGES ELOSZTÁSÚ ingatlan 4 szobával, 2 fürdőszobával, modern konyhabútorral, SAJÁT ZÁRT PARKOLÓVAL ÉS PINCÉVEL rendelkezik. A lakás csendes elhelyezkedése mellett minden szolgáltatás karnyújtásnyira elérhető – üzletek, közlekedés, iskolák, éttermek pár perc sétára.

Ez a tágas, kiváló állapotú otthon családoknak és befektetőknek egyaránt ideális választás, ráadásul OTTHON START 3%-OS és piaci hitelképes, plussz CSOK-ra is alkalmas (3+ gyermek esetén).

 

Ha belvárosi, mégis nyugodt életre vágysz, ne hagyd ki ezt a lehetőséget – hívj, és megmutatom Neked ezt a GYÖNGYSZEMET!

 

Az ingatlan energetikai besorolásának meghatározása jelenleg folyamatban van.

További tájékoztatásért kérem, keressen elérhetőségeim egyikén.

Lakás részletei

Ár: 67 700 000 Ft
Méret: 110 négyzetméter
Azonosító: 11566821
Irodai azonosító: 698900690
Cím: Munkácsy Mihály utca
Emelet: 2. emelet
Építőanyag: Tégla
Fűtés jellege: Központi
Ingatlan állapota:
Komfort fokozat: Dupla komfort
Egész szobák: 4

Egyéb jellemzők

  • Lift

Így keressen lakást négy egyszerű lépésben. Csupán 2 perc, kötelezettségek nélkül!

Szűkítse a lakások
listáját
Válassza ki a megfelelő
lakást
Írjon a hirdetőnek
Várjon a visszahívásra