Eladó lakás Mende 43 900 000 Ft

Leírás

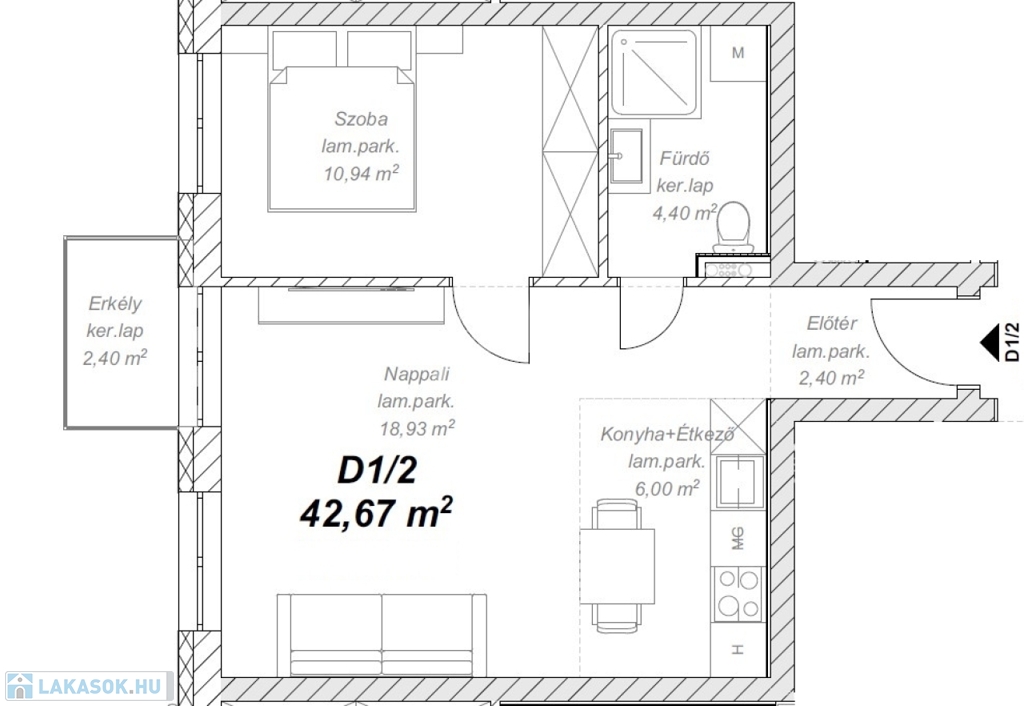
Mendén csodálatos zöld környezetben a Hétdomb lakóparkban, I. ütem második szakaszában megvalósuló új építésű zárt lakóparkban, A. kategóriás energiatakarékos ( hőszivattyús ) 16 lakásos társasházban, nettó hasznos 42,67 m² alapterületű, I. EMELETI ERKÉLYES lakást kínálunk eladásra ( D épület I. emelet 2. Lakás ).

A kivitelező cég szem előtt tartja az alacsony rezsiköltséget, ezért a projekt a legkorszerűbb követelményeknek megfelel, ( lásd műszaki tartalom ).
Az épületek társasházzá lesznek nyilvánítva, így a lakások külön helyrajzi számmal azaz albetéttel rendelkeznek majd.

A lakások fűtését hőszivattyú biztosítja padlófűtéses hőleadással, a használati melegvíz ellátást minden lakásban hőszivattyús bojler biztosítja.

Felszíni kocsibeálló bruttó ára: 2,5 MFt./db. és 3 MFt/db-ig (itt már elektromos töltési lehetőséggel)
Tároló bruttó ára: 2 MFt./db.
C. épület vállalt befejezési ideje: 2026.03.30.
C. épület várható használatbavétele: 2026.06.30.

Műszaki tartalom ( részlet ):

-Alapozás: Monolit vasbeton lemezalapozás
-Teherhordó falazat: Porotherm vázkerámia falazat, érintkező falaknál SILKA (hanggátló) mészhomoktégla falazat
-Válaszfalak: Falazott vagy Gipszkarton válaszfalak, kétoldali vakolással vagy gletteléssel
-Tetőszerkezet: Szeglemezes rácsostartó faváz szerkezet
-Nyílászárók: Fokozott légzárású 3 rtg-ű műanyag nyílászárók / k=min.: 1,0 W/m2K /
-Vízszigetelés: 1, 2 rtg vagy kent modifikált bitumenes vastaglemez szigetelés
-Hőszigetelés: Lábazaton 15 XPS hőszigetelés, oldalfalon 15 cm EPS hőszigetelés
-Héjalás: Cserépfedés, bádogos kiegészítő elemekkel
-Homlokzatburkolatok: Homlokzati színezett vakolat
-Padlóburkolatok: Kerámia hidegburkolatok, laminált parketta melegburkolatok
-Falburkolatok: Belső oldali vakolat, festve, felület kezelve, vizes helyiségekben kerámia burkolat

Az ingatlan részletes ismertetése és bemutatása, előre egyeztetett időpontban lehetséges, amelyet nagyon rugalmasan kezelünk, akár HÉTVÉGÉN is.
További kérdéseivel kapcsolatban várom a jelentkezését.
Amennyiben Önnek a vásárláshoz szüksége lenne hitelre, babaváró kölcsönre, lakástakarékra, stb., kezdeményezheti a kapcsolatfelvételt bankfüggetlen hitelügyintézőinkkel, teljesen DÍJMENTESEN.
Közel 25 év szakmai tapasztalattal rendelkezem, eladó vagy kiadó ingatlana értékesítése vagy bérbeadása esetén, készséggel állok az Ön rendelkezésére is, keressen bizalommal.

Lakás részletei

Ár: 43 900 000 Ft
Méret: 43 négyzetméter
Azonosító: 11575664
Irodai azonosító: 389123
Cím: Mendei Lakópark, D. épület I.em. 2.
Emelet: 1. emelet
Építőanyag: Tégla
Fűtés jellege: Hőszivattyú
Ingatlan állapota: Kitűnő
Komfort fokozat: Összkomfort
Építési év: Új építésű
Tulajdonviszony: Saját
Kilátás: kertre néző
Egész szobák: 2

Egyéb jellemzők

  • Erkély
  • Garázs
  • Lift
  • Pince
  • Tároló

Térkép


Így keressen lakást négy egyszerű lépésben. Csupán 2 perc, kötelezettségek nélkül!

Szűkítse a lakások
listáját
Válassza ki a megfelelő
lakást
Írjon a hirdetőnek
Várjon a visszahívásra