Eladó lakás Lipót 59 400 000 Ft

Leírás

Kitűnő elrendezésű lakások eladók Lipóton

Lipót a Szigetköz szívében fekvő vadregényes település. A Duna közelsége, a táj természeti szépségei, a 2000 m mélységből feltörő különleges termálvízre épülő teljesen felújított termál-, és élményfürdő teszik a települést igazán különlegessé és vonzóvá.

A település Mosonmagyaróvártól 17 km-re, Győrtől 30 km-re található, M1 autópályáról is könnyen megközelíthető. Ezen a varázslatos helyen ritka az eladó ingatlan.

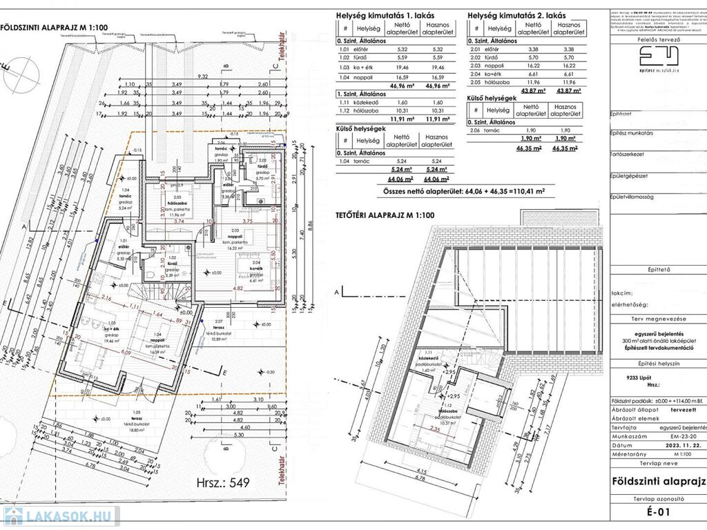
A termálfürdő közelében, új lakóparkban, 2025-ben épülő, zártsorú beépítéses, 2 lakásos, külön bejáratú ház egy 424 m2-es telken fekszik.

Az 64,06 m2-es, belső 2 szintes lakás földszinti helyiségei: 36,05 m2 nappali- konyha-étkező, 5,59 m2 fürdő WC-vel, 5,32 előszoba. A lakáshoz tartozik egy 5,24 m2-es tornác és egy 18,8 m2-es TERASZ.
Tetőtér: 10,31 m2 háló, 1,6 m2 közlekedő.

KULCSRAKÉSZ ÁR!
A választható bruttó burkolati árak :
hideg burkolat: 6000 Ft./nm
meleg burkolat 5000 Ft./nm
beltéri ajtó: 80 000 Ft/ db.
Benne vannak az árban a kapcsolók a konnektorok, alap csaptelepek
A lakás kulcsrakész állapotban nem tartalmazza a konyhabútort és semmilyen konyhai gépet, a kerítést, parkosítást sem

Várható átadás 2025. év vége.

Műszaki tartalom:
- Teherhordó szerkezetek: INETON kéregfalpanel
- Nem teherhordó szerkezetek: YTONG válaszfal
- Födém: Statikailag méretezett INETON födémpanel
- 15 cm grafitos Austrotherm hőszigetelés
- 3 rétegű üveggel ellátott műanyag ablakok
- Terran Zenit Colorsystem beton cserép fedés,
- kőporcelán teraszburkolat
- A fűtés HŐSZIVATTYÚVAL megoldott, hőleadó padlófűtés
- kitűnő minőségű hideg- és meleg burkolatok, szaniterek, csapok

CSOK, támogatott lakáshitelek igénybe vehetők. A településen elérhető a Falusi CSOK is.
Hitelre van szüksége? Díjmentes tanácsadás, hitelszűrés, teljes körű ügyintézés kedvezményekkel a Bankmonitoron keresztül.

Amennyiben hirdetésem felkeltette érdeklődését, kérem forduljon hozzám bizalommal. Rugalmasan tudom mutatni. Várom hívását! 20/2777237

Lakás részletei

Ár: 59 400 000 Ft
Méret: 64 négyzetméter
Azonosító: 11498557
Irodai azonosító: 117431
Cím: Lipót
Emelet: Földszint
Építőanyag: Kérdezzen rá a hirdetőtől »
Fűtés jellege: Cirkó
Ingatlan állapota: Átlagos
Építési év: Új építésű
Egész szobák: 3

Egyéb jellemzők

  • Erkély

Így keressen lakást négy egyszerű lépésben. Csupán 2 perc, kötelezettségek nélkül!

Szűkítse a lakások
listáját
Válassza ki a megfelelő
lakást
Írjon a hirdetőnek
Várjon a visszahívásra