Eladó lakás Kozármisleny 92 500 000 Ft

Leírás

Kozármisleny folyamatosan fejlődő új részén 8 lakásból álló épületben modern, új építésű lakások eladók!

Első emeleti belső kétszintes amerikai konyhás, 3 szobás nagy teraszos lakás saját autó beállóval eladó!
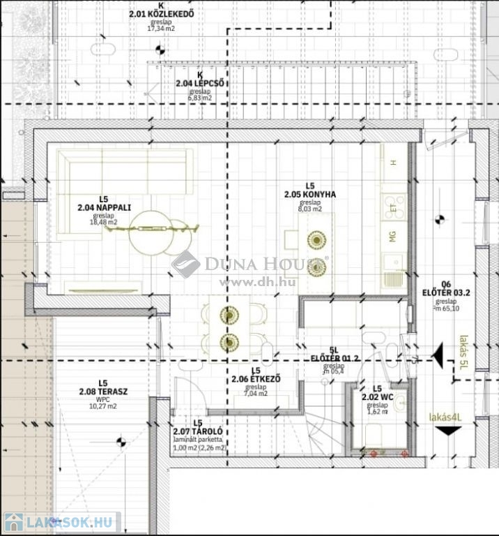
1. Lakás 102 m2 helyiség lista:

- Konyha
- Étkező
- Nappali
- 3 szoba
- Fürdőszoba
- Külön WC
- Mosókonyha
- Terasz 12,5m2
- Saját autó beálló

A lakópark modern, energiahatékony rendszerekkel épül, tökéletes harmóniát képez a természettel.A lakások kényelmes, modern, funkcionális elrendezéssel, szép panorámával, magas, prémium minőségű anyagok felhasználásával csábítják új lakóikat.

Minden lakáshoz díjmentes parkolóhely tartozik, a földszinti lakások saját kerttel, az emeleti lakások terasszal rendelkeznek.Az L alakú épület egy védett közösségi teret ölel körül, ahol egy közös park kerül kialakításra. Ez a védett közösségi tér az igények szerint alakítható. Lehet találkozási pont, akár medence és játszótér is megvalósítható erre a területre.A környezet kisgyermekes családok részére is biztonságos, sebességkorlátozott övezet, a közelben új óvoda, kiváló iskola is várja a gyerekeket.

Műszaki tartalom:
- 30cm X-Therm vázkerámia falazó-blok, 12cm grafitos hőszigetelés
- 30cm födém szigetelés
- Hőszigetelt műanyag nyílászárók
- Földszinti gépházban kialakított hőszivattyús padlófűtésrendszer és lakásonként fan-coil gyors felfűtésre és hűtésre alkalmas rendszer, HMV körben kialakított használati meleg víz cirkulációs rendszer
- Konyhákban, fürdőszobákban, Wc-ben kialakított szellőztetőrendszer közvetlenül a szabadba vezetve

Az épületben még több lakás elérhető, érdeklődjön a lakások után!

Lakás részletei

Ár: 92 500 000 Ft
Méret: 102 négyzetméter
Azonosító: 11499172
Irodai azonosító: LK022330-4884168
Cím: Eladó 102 nm-es lakás Kozármisleny
Emelet: 1. emelet
Építőanyag: Tégla
Fűtés jellege: Hőszivattyú
Ingatlan állapota: Épülő
Építési év: Új építésű
Egész szobák: 3

Egyéb jellemzők

  • Kocsibeálló

Térkép


Így keressen lakást négy egyszerű lépésben. Csupán 2 perc, kötelezettségek nélkül!

Szűkítse a lakások
listáját
Válassza ki a megfelelő
lakást
Írjon a hirdetőnek
Várjon a visszahívásra