Eladó lakás Kozármisleny 79 990 000 Ft

Leírás

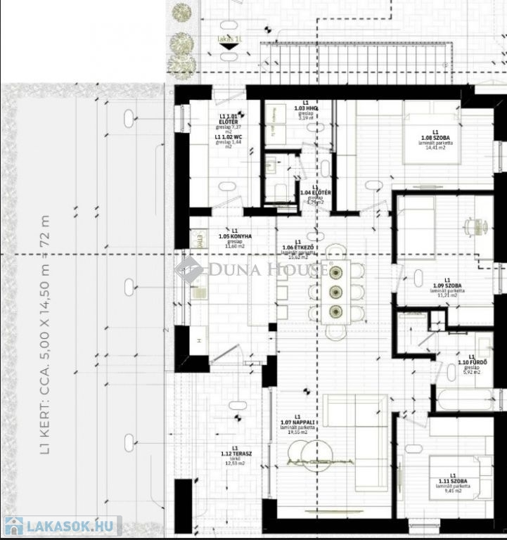
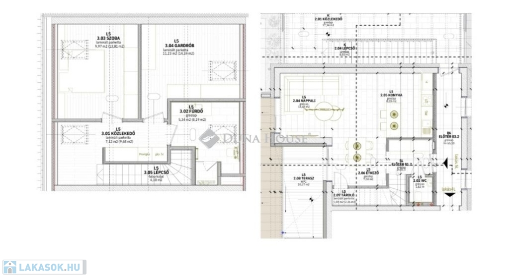
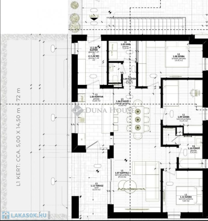
Új építésű lakások Kozármislenyben!Elhelyezkedés: A lakópark északi és keleti szomszédságában társasházak, és családi házak, déli oldalán erdős terület, nyugati oldalán pedig szántóföld terül el.Az északi épületből ill. a déli épület felső szintjeiről a Mecsek hegyeire nyílik csodás kilátás, míg a déli társasház tökéletes harmóniát kínál a természettel.A környező utcákban új társasházak és családi házak épültek az elmúlt években, melyeket főként kisgyermekes családok laknak, ami egyedi és barátságos légkört teremt. A szomszéd utcában található egy új óvoda, ami további előny a kisgyermekes családoknak.Az úthálózat kiváló minőségű, sebességkorlátozott övezet, így a gyermekek is biztonsággal kerékpározhatnak a környéken.Épületek és lakások:A lakóparkban két L alakú épület található, mindkét épületben 8 lakás. A lakások modern, energiahatékony rendszerekkel készülnek, kényelmes elrendezést kínálnak, magas minőségű anyagok felhasználásával. Minden lakáshoz díjmentesen parkolót biztosítunk, a földszinti lakások pedig külön kerttel rendelkeznek.Közös park:A lakópark közepén egy közös park kerül kialakításra, amely találkozási pontként és kikapcsolódási lehetőségként szolgál a lakók számára. Közösségi igény esetén medence és játszótér is megvalósítható erre a területre.Célközönség:Fiatal családok, akik nyugodt és természetközeli lakókörnyezetet keresnek. Olyan vásárlók, akik nagyra értékelik a modern, kényelmes otthonokat, miközben a természet közelségét is élvezhetik.Igény esetén tervezési, belsőépítészeti tanácsadás és különleges ajánlatok új lakásvásárlók számára.

Lakás részletei

Ár: 79 990 000 Ft
Méret: 91 négyzetméter
Azonosító: 11608539
Irodai azonosító: PR070900/LK/26059-5115974
Emelet: Földszint
Építőanyag: Tégla
Fűtés jellege: Hőszivattyú
Ingatlan állapota: Épülő
Építési év: Új építésű
Kilátás: udvari
Egész szobák: 3

Egyéb jellemzők

  • Tároló
  • Kocsibeálló

Térkép


Így keressen lakást négy egyszerű lépésben. Csupán 2 perc, kötelezettségek nélkül!

Szűkítse a lakások
listáját
Válassza ki a megfelelő
lakást
Írjon a hirdetőnek
Várjon a visszahívásra