Eladó lakás Komárom 85 000 000 Ft

Leírás


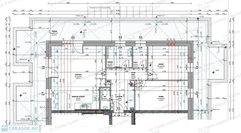
Igazi ritkaság. Kulcsrakész ár! 3 oldalról világos ingatlan, körbe 62,39 nm-es terasz (nevezhetjük akár Penthouse-nak is)

72,97 nm lakótér: Konyha - étkező - nappali + 2 szoba, fürdő, külön WC, háztartási helyiség (ideális családi méret) Nincs felső szomszéd, minden közel van, új építésű ingatlan.

Energetikai tulajdonság (BB), értékállósága miatt megtérülő befektetés.

Csak 20 lakás,  Nézd meg a videó A FŰTÉSKÉSZ ÁLLAPOTRÓLt!

Műszaki infó:

A tartószerkezetek 30 cm vastag vázkerámia téglából készülnek.

A szigetelés dryvit rendszerben készül, 16 cm (EPS)

A bejárati ajtó biztonsági 14 ponton záródó.

Az ablakok és az erkélyajtók GEALAN, 6 légkamrás 3 rétegű hőszigetelő üvegezésűek, fehér színben.

A nyílászárók alumínium redőnyökkel ellátottak, a parapetes ablakokat kombi redőnnyel (szúnyogháló + alumínium redőny) felszereltek.

Erkélyekre fagyálló, csúszásmentes burkolat került.

32 A-es villamos hálózat készül, kaputelefont, kábeltévét, internet hálózatot.

Padlófűtés a lakásban, a fürdőkben törölközőszárítós radiátor 

A fűtés- és melegvíz energiáját a komáromi távhő szolgáltatja

Egyedi mérés biztosítva.

 

GK parkolás zárt udvarban, vagy garázsban:

GK beálló felszíni: 2 M Ft /db

Mélygarázsban beálló: 5,5 M Ft / db

Tároló 3 nm-es: 2 M Ft / db

Nézzük meg együtt, amennyiben ilyet képzeltél magadnak.

Videó: https://youtu.be/ytQ_L2AHsTA

Kérj időpontot! Hartmann-né Viki +36 20 481 3369

Kulcsrakész ár: 85 M Ft. 

 

Lakás részletei

Ár: 85 000 000 Ft
Méret: 73 négyzetméter
Azonosító: 11612064
Irodai azonosító: 210600589
Emelet: 2. emelet
Építőanyag: Tégla
Fűtés jellege: Egyéb
Ingatlan állapota: Kitűnő
Komfort fokozat: Összkomfort
Építési év: Új építésű
Egész szobák: 3

Egyéb jellemzők

  • Lift

Így keressen lakást négy egyszerű lépésben. Csupán 2 perc, kötelezettségek nélkül!

Szűkítse a lakások
listáját
Válassza ki a megfelelő
lakást
Írjon a hirdetőnek
Várjon a visszahívásra