Eladó lakás Kistarcsa 76 000 000 Ft

Leírás

Kistarcsán, ELADÓ egy 76nm-es emeleti tégla lakás hozzá tartozó 300nm-es kerttel, garázzsal, 26nm-es tárolóval + egy 35nm-es szuterénnel/üzlethelyiséggel!

CSOK+-ra alkalmas és HITELEZHETŐ

Az ingatlan,központi forgalmas helyen található. Kiadásra alkalmas mind a lakás mind a szuterén/üzlethelyiség része, mely korábban kisállat kereskedésként és bababoltként is üzemelt.

-Telek mérete: 350nm
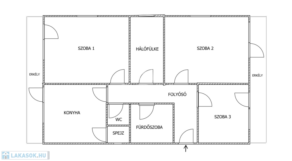
-4 szoba
-konyha
-spejz
-folyosó
- 2 erkély
-fürdő
-külön WC
--------------------------------------------
Fűtés: gázkazán és kombi cirkó
Áram: IPARI áram !! (3x16A és 3x25A) az üzlethelyiségben és a gazdasági épületben is!
Alacsony rezsi: kb. 30.000-Ft /hó

Az ingatlan per-és tehermentes. A vételár részét képezi a konyha, a fürdőszoba, a hálófülke beépített valamint a nappali teljes bútorzata. Ügyvédi megosztás van.

Közlekedés kiváló: HÉV, 92-es busz, távolsági buszjáratok


Irányár: 76.000.000- Ft

Várom hívását!

Lakás részletei

Ár: 76 000 000 Ft
Méret: 76 négyzetméter
Azonosító: 11266833
Irodai azonosító: 356110
Cím: Kórházhoz közeli
Erkély mérete: 16.00 négyzetméter
Emelet: 1. emelet
Építőanyag: Tégla
Fűtés jellege: Cirkó
Ingatlan állapota:
Komfort fokozat: Összkomfort
Építési év: 21-50 éves
Tulajdonviszony: Saját
Kilátás: utcai
Egész szobák: 3
Fél szobák: 1

Egyéb jellemzők

  • Erkély
  • Garázs
  • Lift
  • Pince
  • Tároló

Térkép


Így keressen lakást négy egyszerű lépésben. Csupán 2 perc, kötelezettségek nélkül!

Szűkítse a lakások
listáját
Válassza ki a megfelelő
lakást
Írjon a hirdetőnek
Várjon a visszahívásra