Eladó lakás Kiskunlacháza 51 522 000 Ft

Leírás

Kiskunlacháza központi részén, kínálom megvételre új-építésű 31 lakásos liftes társas-ház, második emeleti 43,38 nm-es lakását,
19,08 nm terasszal!

Kiskunlacházán most épülő társas-ház második emelet 31-es. teraszos lakása eladó!

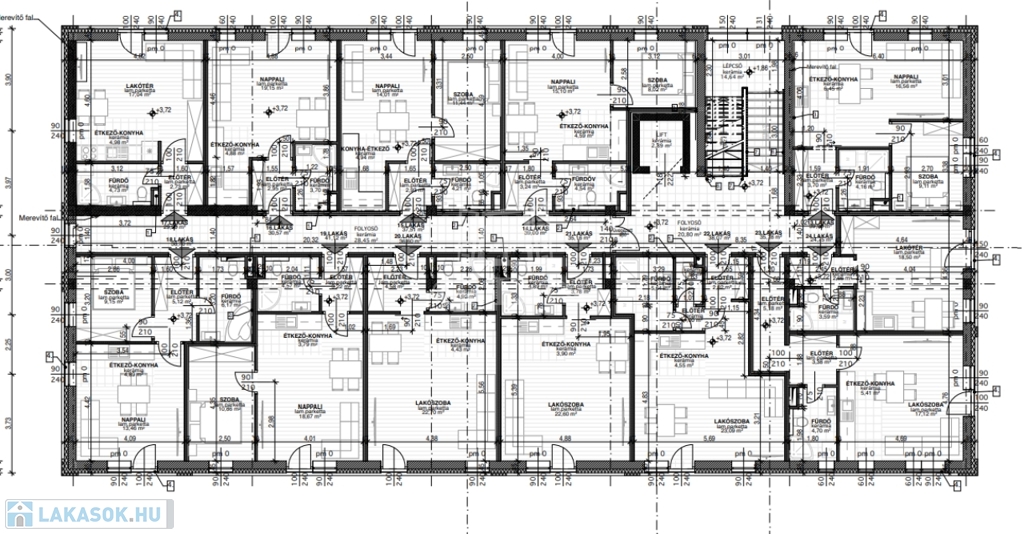
A társas-házban 31 db lakás épül 27 és 54 nm között három szinten,
lakások 2025 év végén kerülnek átadásra.
Nézze meg a többi lakást is a hirdetésem között!

Műszaki tartalom:
-alap vasalt beton,
-falazat phorothetm tégla
-monolit beton födém
-nyílászáró 3rtg üvegezett műanyag szerkezetű
-tető fedése beton cserép
-fűtés hőszivattyú, padlófűtés hőleadással
-15 cm Dryvit rendszerű homlokzatszigetelés
-választható hideg és meleg burkolat.
A lakás nettó 43,38 nm, helyiségei:előtér 4,43 nm, fürdőszoba 7,46 nm, étkező/konyha 5,11 nm, nappali/lakószoba 18,48 nm, szoba 8,11 nm, terasz 19,02 nm.
A lakáshoz vásárolható teremgarázshely melynek ára 3.500.000 ft, vagy földfelszíni parkolóhely melynek ára 1.500.000 ft, (megvásárlása nem kötelező), valamint tároló helyiség is vásárolható.
A társas-házban 31 db lakás kerül megépítésre, a földszinti és első emeleti lakások erkély nélküliek, a 2 emeleti lakások terasz kapcsolattal rendelkeznek.

Amennyiben kérdése merül fel, vagy megtekintené a lakást keressen bizalommal!

FINANSZÍROZÁS:
Nálunk mindent egy helyen intézhet:
- hivatalos ingatlanközvetítés;
- szakszerű jogi képviselet;
- profi CSOK-PLUSZ, és hitelügyintézés: 16 Bank, több mint 100 konstrukció;

A részletes adatvédelmi tájékoztató folyamatosan elérhető a gdn-ingatlan adatvedelmi oldalon.

Lakás részletei

Ár: 51 522 000 Ft
Méret: 44 négyzetméter
Azonosító: 11572138
Irodai azonosító: 388427
Cím: Pest megye
Emelet: 2. emelet
Építőanyag: Tégla
Fűtés jellege: Hőszivattyú
Ingatlan állapota: Kitűnő
Komfort fokozat: Összkomfort
Építési év: Új építésű
Tulajdonviszony: Saját
Kilátás: udvari
Egész szobák: 2

Egyéb jellemzők

  • Erkély
  • Garázs
  • Lift
  • Pince
  • Tároló

Térkép


Így keressen lakást négy egyszerű lépésben. Csupán 2 perc, kötelezettségek nélkül!

Szűkítse a lakások
listáját
Válassza ki a megfelelő
lakást
Írjon a hirdetőnek
Várjon a visszahívásra