Eladó lakás Kiskunhalas 42 250 000 Ft

Leírás

Referenciaszám: #NH1416
Infó: Fábrik Erzsébet +3670 7762 759

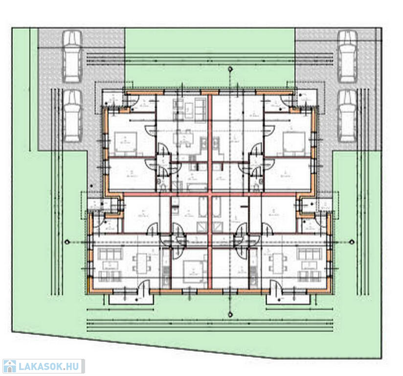
Kiskunhalas Kertvárosban 4 db újépítésű kertkapcsolatos lakás elővételben eladók!
Kiskunhalas Kertvárosban a Fridrich L. utcában 2024 -ban épülő (augusztusi átadással)- 4 lakásos társasházban kertkapcsolatos lakások elővételben megvásárolhatók, foglalózhatók.
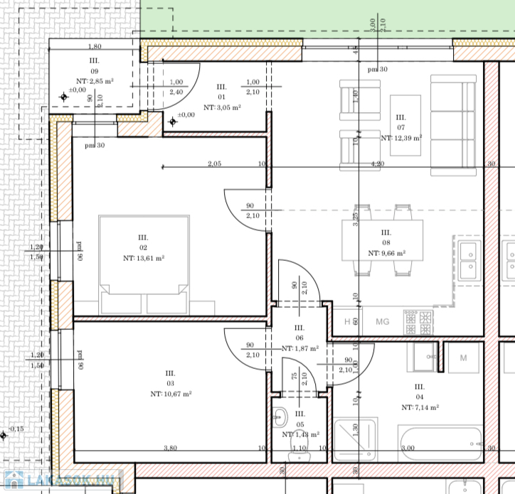
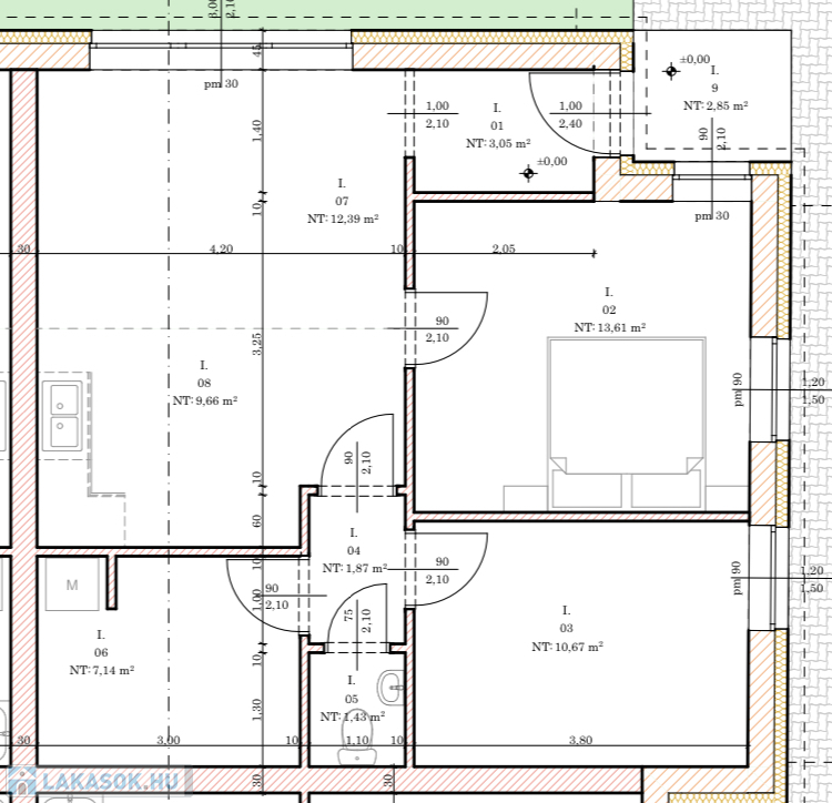
A lakásokban található 2 különálló szoba, amerikai konyhás nappali, fürdőszoba káddal vagy tusolóval, wc, szélfogó előtér és egy kisebb terasz.
Az ingatlanba beépített anyagok a magas minőséget képviselik. Az épület fűtését gázcirkó központi fűtés biztosítja. A szigetelt nyílászárók elektromos redőnnyel ellátottak. Az Épület 15 cm-es homlokzati és 30 cm-es födémszigetelést kap.
A társasházban 2 db 65m2-es kertkapcsolatos lakás,
és 2 db 72 m2-es kertkapcsolatos lakás található.

ÁR: 650.000 Ft/m2 + 5% ÁFA
65 m2 X 650.000 - 42.250.000 FT + 5% ÁFA
72 m2 X 650.000 - 46.800.000 Ft + 5% ÁFA

Jellemzők:
- Lakóterület: 65 m2 és 72 m2
- Szobaszám: 2 háló + 1 amerikai konyhás nappali
- Fürdőszoba: kád vagy zuhanyfülke
- Külön wc
- Konyha: beépített bútor igény szerint
- Nyílászárók: szigetelt műanyag + elektromos redőnyök

- Építési mód: Porotherm tégla
- Homlokzati szigetelés 15 cm
- Födém szigetelés 30 cm
- Fűtés: gázcirkó központi fűtés + inverteres klíma

Hívjon bizalommal, tekintse meg! Ügyfeleink részére irodánk komplex szolgáltatással /prezentációk, CSOK-, hitel-, lakástakarék-pénztári, biztosítási, jogi, kivitelezési, NAPELEM - REZSINULLÁZÁS tanácsadás és ügyintézés/ igény szerint rendelkezésére áll!

Lakás részletei

Ár: 42 250 000 Ft
Méret: 64 négyzetméter
Azonosító: 11146913
Irodai azonosító: #NH1416
Emelet: Földszint
Építőanyag: Tégla
Fűtés jellege: Cirkó
Ingatlan állapota: Épülő
Komfort fokozat: Összkomfort
Építési év: Új építésű
Elhelyezkedés: Társasház
Tulajdonviszony: Saját
Kilátás: panorámás
Egész szobák: 2
Nappalik: 1

Egyéb jellemzők

  • Klíma
  • Kertkapcsolat

Így keressen lakást négy egyszerű lépésben. Csupán 2 perc, kötelezettségek nélkül!

Szűkítse a lakások
listáját
Válassza ki a megfelelő
lakást
Írjon a hirdetőnek
Várjon a visszahívásra