Eladó lakás Keszthely 159 000 000 Ft

Leírás

Belső kétszintes, PRÉMIUM anyagokból épült lakás SAJÁT UDVARRAL felszíni beálókkal KESZTHELY kedvelt kertvárosi részén a strandtól és kikötőtől 500 méterre!

Eladóvá vált ez a minden igényt kielégítő, prémium anyagok felhasználásával készült 140 m2 - es nappali plusz 4 szobás lakás teraszokkal, erkéllyel, saját, körbekerített udvarral, 2 felszíni beállóval, előkerttel, fúrt kúttal Keszthely nyugodt, csendes utcájában a Libás strandtól és a Vitorlás kikötőtől csupán 500 méterre!

Az ingatlan praktikus elosztással bír:

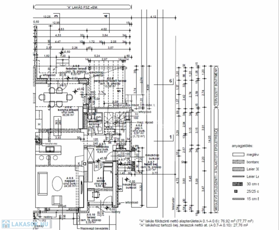
Földszintje 77 m2, ahol a következő helyiségek találhatók:
- tágas amerikai - konyhás nappali - innen sétálhatunk ki a 2, fedett és fedetlen, majd' 30 m2 - es kertkapcsolatos teraszra,
- háló / dolgozószoba, mely saját külső bejárattal és 6 m2 - es terasszal rendelkezik,
- zuhanyzóval és toalettel ellátott fürdő,
- tárolóhelyiség.

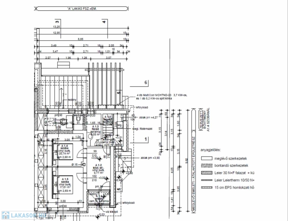
Felső szintje 63 m2, itt rendelkezésünkre áll:
- egy hall helyiség mely erkéllyel rendelkezik,
- kettő különnyíló nagyméretű háló,
- egy fürdőkáddal és toalettel ellátott fürdő, valamint egy
- mosókonyha.

A padlásszint 15 m2, mely hasznos belmagassággal rendelkezik, így igény esetén hasznosítható.

A nyugati tájolású, dupla komfortos otthon idén született újjá, tetőtől aljzatig minden porcikája megújult.
Megalkotásánál a letisztultság, igényesség, praktikusság és magas minőség jelentette a legfőbb szempontokat ⬇️

- Új vízhálózat került kialakításra

- 3 x 32 Amperre felbővített áramhálózatnak és H tarifás mérőnek lett büszke tulajdonosa

- Melegvízellátásáról villanybojler gondoskodik

- Melegéért hősszivattyús klímarendszer felel energiatakarékos A++ hűtő - fűtő klímák és padlófűtés formájában, így garantált a költséghatékony fenntartás

- Szobái és helyiségei magas minőségű hideg és meleg burkolattal ellátottak, fürdőszobáinak szaniterei ugyanilyen kvalitással bírnak

- Külső nyílászárói műanyagból készültek.

Az ingatlan minőségén túl annak területe és a beruházó által nyújtott plusz tényezők sem elhanyagolhatók: ⬇️

- A 360 m2 - es hátsó pihenőkert és az előkert FÜVESÍTVE és KÖRBE KERÍTVE kerül átadásra

- Hátsó részén rendelkezésre áll egy fúrt kút, mely segíti és megkönnyíti a parkosítást

- Az utcafronti extra méretű nyílászárók motoros rejtett redőnyt kapnak

- Elektromos kapu növeli az itt élők komfortérzetét

- Riasztóberendezés és 2 db kamera kerül felhelyezésre

- A 2 autó számára elegendő felszíni beálló TÉRKÖVEZETT lesz!

A letisztult színhasználatával, prémium minőségű burkolataival, praktikus vonásaival és klasszikus elemeivel egy modern megjelenésű, minden igényt kielégítő otthon vált belőle!

Ajánlom befektetőknek:
- Keszthely egész éves átogatottsága,
- a Vitorlás Kikötő,
- Libás Strand
- valamint az Alphapark közelsége miatt.

Saját részre kereső családoknak:
- nyugodt, csendes környezete, udvara megléte miatt

DE leginkább azoknak, akik minőségi anyagok felhasználásával épített probléma -és csalódásmentes ingatlant keresnek kezelhető méretű területen!

Az ingatlan tulajdoni lapja per, teher -és igénymentes!

Irányára: 159.000.000 Ft

Lakás részletei

Ár: 159 000 000 Ft
Méret: 140 négyzetméter
Azonosító: 11269196
Irodai azonosító: 356297
Cím: Zámor
Erkély mérete: 33.00 négyzetméter
Emelet: Földszint
Építőanyag: Tégla
Fűtés jellege: Villany
Ingatlan állapota: Kitűnő
Komfort fokozat: Dupla komfort
Építési év: 21-50 éves
Tulajdonviszony: Saját
Kilátás: udvari
Egész szobák: 3
Fél szobák: 2

Egyéb jellemzők

  • Erkély
  • Garázs
  • Lift
  • Pince
  • Tároló

Térkép


Így keressen lakást négy egyszerű lépésben. Csupán 2 perc, kötelezettségek nélkül!

Szűkítse a lakások
listáját
Válassza ki a megfelelő
lakást
Írjon a hirdetőnek
Várjon a visszahívásra