Eladó lakás Kecskemét 84 500 000 Ft

Leírás

Otthonok és Megoldások!
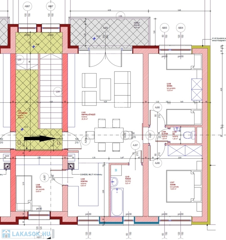
2026 júliusi kulcsrakész átadással, belváros közeli, most épülő, I. emeleti, nappali+3 szobás, 73,4 nm, erkélyes lakás, 5 lakásos társasházban eladó.
A lakás főbb jellemzői:
- Nappali-konyha-étkező egy légtérben
- 3 külön nyíló szoba
- Fürdő, mosdó külön
- 6,5 nm erkély
- Közös tároló
- Tégla falazat (Porotherm 30-as)
- Közetgyapot szigetelés (15 cm)
- Fa mintátatú műanyag nyílászáró
- Hőszivattyús fűtési rendszer
- Hűtő-fütő klíma
- garázs vagy gépkocsi beálló külön vásárolható

A lakás 20% önerővel lefoglalható. A lakáshoz további 11,5 millió Forintért 18 nm, saját garázs vásárolható. Amennyiben felkeltette érdeklődését , a teljeskörű műszaki dokumentációt rendelkezésére bocsájtjuk irodánkban, továbbá tájékoztatjuk a fizetési feltételeket, s igény esetén a hitelfelvételben is segítséget nyújtunk. Hívjon bátran!

Lakás részletei

Ár: 84 500 000 Ft
Méret: 74 négyzetméter
Azonosító: 11555205
Irodai azonosító: 385745
Cím: Bányai Júlia Gimnázium közeli
Emelet: 1. emelet
Építőanyag: Tégla
Fűtés jellege: Hőszivattyú
Ingatlan állapota: Kitűnő
Komfort fokozat: Összkomfort
Építési év: Új építésű
Tulajdonviszony: Saját
Kilátás: udvari
Egész szobák: 3

Egyéb jellemzők

  • Erkély
  • Garázs
  • Lift
  • Pince
  • Tároló

Térkép


Így keressen lakást négy egyszerű lépésben. Csupán 2 perc, kötelezettségek nélkül!

Szűkítse a lakások
listáját
Válassza ki a megfelelő
lakást
Írjon a hirdetőnek
Várjon a visszahívásra