Eladó lakás Kecskemét 74 990 000 Ft

Leírás

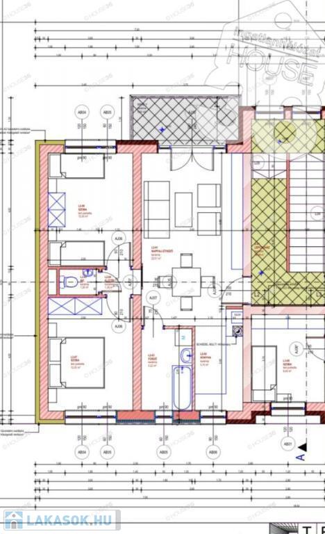
Új építésű, FÖLDSZINTI TÉGLA LAKÁS NAGY TERASSZAL eladó Kecskeméten!

Kecskemét frekventált részén, a Belváros és Máriaváros határán, eladó egy 59,35m2-es, lakóterű, nappali + 2 szobás, 1.emeleti lakás, 5,63m2-es saját terasszal, egy mindössze 5 lakásos, zárt udvaros,ÚJ ÉPÍTÉSŰ TÁRSASHÁZBAN!

Főbb jellemzők:

-téglaépítésű társasház, tégla belső válaszfalakkal

-átadás várható időpontja: 2026. június!

-korszerű hőszivattyús fűtés és fan-coil hűtés

-3 rétegű hőszigetelt nyílászárók redőnnyel

-15 cm vastag homlokzati szigetelés

Választható burkolatok:

-hidegburkolat 8.000 Ft/m2-ig

-melegburkolat 7.000 Ft/m2-ig

Garázsvásárlási lehetőség: 9.900.000 Ft

Zárt udvari gépkocsibeálló vásárlási lehetősége: 2.000.000 Ft

INGATLANA ELADÁSÁBAN és HITELE INTÉZÉSÉBEN is TUDOK SEGÍTENI!
ITTHON-OTTHON!!!
Az iroda legfrissebb, aktuális kínálatát a HOUSE36 saját weboldalán találja!

Lakás részletei

Ár: 74 990 000 Ft
Méret: 59 négyzetméter
Azonosító: 11566101
Irodai azonosító: 3620421-5028524
Emelet: 2. emelet
Építőanyag: Tégla
Fűtés jellege: Egyéb
Ingatlan állapota: Épülő
Építési év: Új építésű
Egész szobák: 3

Egyéb jellemzők

  • Erkély

Térkép


Így keressen lakást négy egyszerű lépésben. Csupán 2 perc, kötelezettségek nélkül!

Szűkítse a lakások
listáját
Válassza ki a megfelelő
lakást
Írjon a hirdetőnek
Várjon a visszahívásra