Eladó lakás Kecskemét 62 500 000 Ft

Leírás

Kecskemét egyik ikonikus épülete végre újjászületik!
Kecskemét belvárosának szélén, mégis pár percre a főtértől, kiváló közlekedés mellett, 27 lakásos liftes társasházban, zömében erkélyes, új lakások leköthetőek. Opcionálisan garázs és beálló vásárlási lehetőség.
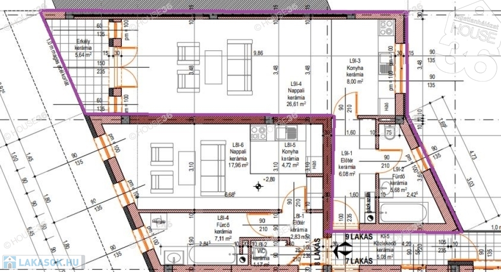
A társasház első emeletén, 46,37 m2 lakóterű, nappali + amerikai/konyhás lakás, 5,64 m2 erkéllyel megvásárolható.
Várható átadás, 2026 december.

27 lakásos, 5 szintes, liftes épület.
Gáz kombi kazán lakásonként
Hűtő-fűtő klíma
Műanyag 6 légkamrás 3 rétegű ablakok, rejtett redőnytokos redőnnyel felszerelve
Beltéri ajtók 5 színben választhatók.
Szobákban laminált parketta, egyéb helyiségekben vinyl illetve hidegburkolat.
Fürdőszobai szaniterek beépítve műszaki tartalom szerint.
Konyhabútor, fürdőszoba szekrény,előszoba fal opcionálisan rendelhető.

További információkat és részletes műszaki tartalmat egy személyes találkozó keretein belül tudunk biztosítani.


A HOUSE36 kínálatában található összes ingatlannal kapcsolatban tudok felvilágosítást nyújtani!

Hívjon bizalommal!
Szolgáltatásaink Kereső ügyfeleink számára INGYENESEK!
Az iroda legfrissebb, aktuális kínálatát a HOUSE36 saját weboldalán találja!

Lakás részletei

Ár: 62 500 000 Ft
Méret: 49 négyzetméter
Azonosító: 11587384
Irodai azonosító: 3620934-5106201
Emelet: 1. emelet
Építőanyag: Tégla
Fűtés jellege: Cirkó
Ingatlan állapota: Épülő
Építési év: Új építésű
Egész szobák: 1

Egyéb jellemzők

  • Garázs
  • Lift

Térkép


Így keressen lakást négy egyszerű lépésben. Csupán 2 perc, kötelezettségek nélkül!

Szűkítse a lakások
listáját
Válassza ki a megfelelő
lakást
Írjon a hirdetőnek
Várjon a visszahívásra