Eladó lakás Kecskemét 44 900 000 Ft

Leírás

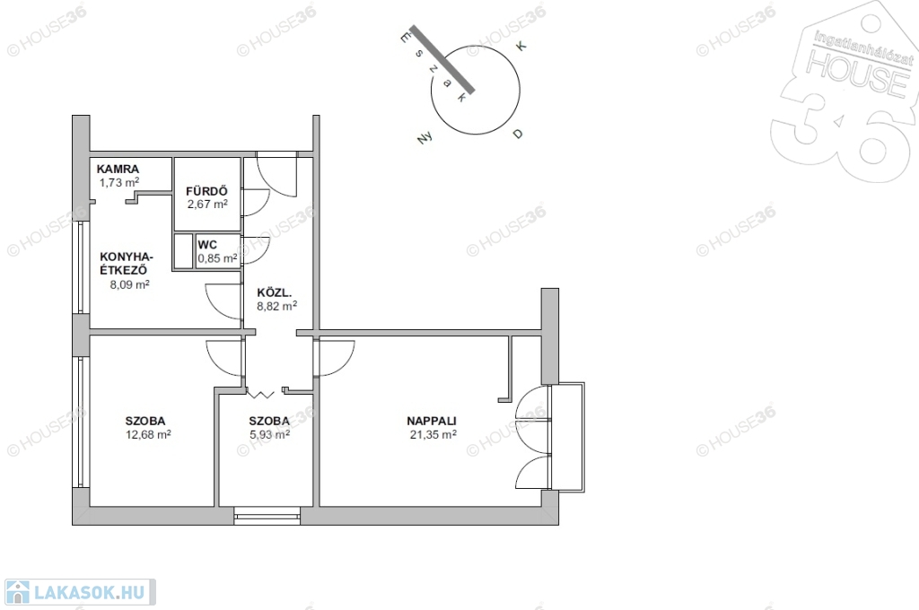
Kecskemét Széchenyivárosban, 61 m2-es, 3 szobás, erkélyes lakás, liftes házban eladó!

Jellemzők:


szigetelt tömb
3 külön nyíló szoba
lift
cserélt műanyagnyílászárók
távfűtés egyedi mérőkkel
kitűnő infrastruktúra
azonnal birtokba vehető


Figyelem az adatlap megbízóinktól kapott adatok
alapján készült,pontosságáért felelősséget
nem tudunk vállalni!


A HOUSE36 kínálatában található összes ingatlannal
kapcsolatban tudok felvilágosítást nyújtani!
Hívjon bizalommal!
Szolgáltatásaink Kereső ügyfeleink számára
INGYENESEK!


Ha az ingatlan vásárláshoz meglévő ingatlan eladása szüksége keressen nyugodtan állok rendelkezésére!!
Az iroda legfrissebb, aktuális kínálatát a HOUSE36 saját weboldalán találja!

Lakás részletei

Ár: 44 900 000 Ft
Méret: 61 négyzetméter
Azonosító: 11595357
Irodai azonosító: 3620926-5104306
Emelet: 5. emelet
Építőanyag: Panel
Fűtés jellege: Központi (egyedi mérővel)
Ingatlan állapota: Átlagos
Építési év: 21-50 éves
Egész szobák: 3

Egyéb jellemzők

  • Erkély
  • Lift

Térkép


Így keressen lakást négy egyszerű lépésben. Csupán 2 perc, kötelezettségek nélkül!

Szűkítse a lakások
listáját
Válassza ki a megfelelő
lakást
Írjon a hirdetőnek
Várjon a visszahívásra