Eladó lakás Kaposvár 52 261 300 Ft

Leírás

Befektetők, otthonkeresők figyelem, hiányt pótló építkezés Kaposvár belvárosában!

Kaposváron megújuló környezetben, a Fő utca 91. szám alatt megvalósuló 15 lakásos társasház a mai kor igényeire és elvárásaira szabva a legkorszerűbb energetikával, kizárólag minőségi anyagok felhasználásával épül -megújuló energiaforrást is alkalmazva- egy hangulatos, fákkal borított telekterületen, kiváló elhelyezkedés mellett.

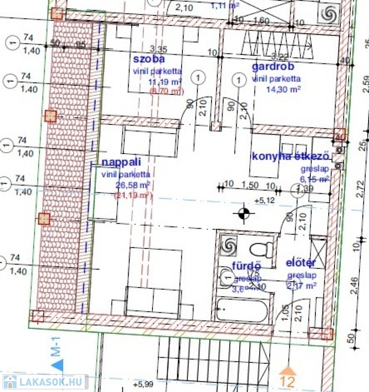
A projekt 12-es számú, második emeleti lakása 57,43 m2 alapterületű. A jól átgondolt terveknek köszönhetően a lakás elosztása kiváló, az életterek kialakításánál a funkcionalitás dominált, kényelmes életteret biztosítva leendő lakóinak.

A lakás a tervek alapján amerikai konyhás nappali, szoba, gardróbszoba, fürdőszoba, és előtér térfelosztású. A lakásban igény esetén még egy szoba kialakítható.

A lakások a burkolatok és beltéri nyílászárók szabad választása mellett kulcsrakész állapotban kerülnek átadásra.

A társasház zárt, elektromos kapubeállóval ellátott udvarán kialakított felszíni beállóhely 2.500.000. Ft-ért, míg "garázs" és hozzá tartozó dupla méretű tároló helyiség 8.000.000.-Ft-ért vásárolható a lakásokhoz.

A társasház méretes zöld udvarán lehetőség nyílik egy fantasztikus közösségi tér kialakítására is, úgy mint játszótér, kondipark, sütögető, pihenő liget.

Az ingatlan beruházója és kivitelezője kimondottan megbízható, több évtizede az építőipari piacon tevékenykedő, kiváló referenciákkal bíró cég (nem pedig egy adott projekt kedvéért létrehozott gazdasági társaság), aki így az esetleges garanciális javításokért is jótáll.

A lakások várható átadása kulcsrakész állapotban 2027. április 30.

Az ingatlantól pár perces sétával érhetőek el boltok, közoktatási és köznevelési intézmények, a magával ragadó Vaszary (Okos) park, a kórház stb...

Egyedülálló lehetőség Kaposvár belvárosában, remek elhelyezkedéssel, kiváló infrastruktúrával, mely befektetésként, és otthonteremtési célzattal is kitűnő választás!

További információért kérem forduljon hozzám bizalommal!

Lakás részletei

Ár: 52 261 300 Ft
Méret: 57 négyzetméter
Azonosító: 11568661
Irodai azonosító: 387813
Cím: Hiánypótló új építés a belvárosban
Emelet: 2. emelet
Építőanyag: Tégla
Fűtés jellege: Cirkó
Ingatlan állapota: Kitűnő
Komfort fokozat: Összkomfort
Építési év: Új építésű
Tulajdonviszony: Saját
Kilátás: udvari
Egész szobák: 2

Egyéb jellemzők

  • Erkély
  • Garázs
  • Lift
  • Pince
  • Tároló

Térkép


Így keressen lakást négy egyszerű lépésben. Csupán 2 perc, kötelezettségek nélkül!

Szűkítse a lakások
listáját
Válassza ki a megfelelő
lakást
Írjon a hirdetőnek
Várjon a visszahívásra