Eladó lakás Kaposvár, Északnyugati városrész, 116 000 000 Ft

Leírás

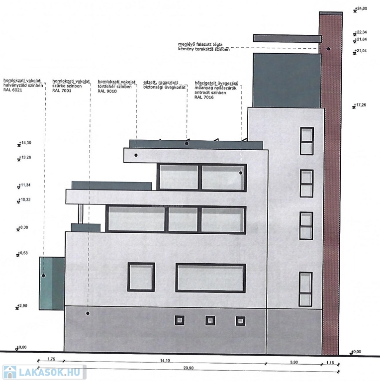
Kaposváron a belváros közvetlen közelében található területre tervezett projekt - 8 lakásos társasház, további 2 irodával és 9 garázzsal, amelyek teljes alapterülete 1.305,95 m2 - építési engedéllyel, tervrajzokkal együtt eladó. A megadott ár nettóban értendő! A tulajdonos esetleg cserét is beszámít, illetve nyitott az épületben kialakításra kerülő lakás(ok)-ért cserébe átadni a projketet!
Amennyiben az ingatlan felkeltette az érdeklődését, kérem hivatkozzon a 12. számú ajánlatra! Irodánk címe: 7400 Kaposvár Irányi D. u. 9.

Lakás részletei

Ár: 116 000 000 Ft
Méret: 1 306 négyzetméter
Azonosító: 11485813
Irodai azonosító: 12
Cím: Nemzetőr sor utca
Városrész: Északnyugati városrész
Építőanyag: Tégla
Fűtés jellege: Geotermikus
Ingatlan állapota: Kérdezzen rá a hirdetőtől »
Egész szobák: 24

Így keressen lakást négy egyszerű lépésben. Csupán 2 perc, kötelezettségek nélkül!

Szűkítse a lakások
listáját
Válassza ki a megfelelő
lakást
Írjon a hirdetőnek
Várjon a visszahívásra