Eladó lakás Hódmezővásárhely 78 900 000 Ft

Leírás

KERTVÁROSI KÖRNYEZET!KULCSRAKÉSZ LAKÁSOK AZ ÖN KÉNYELMÉRE TERVEZVE!
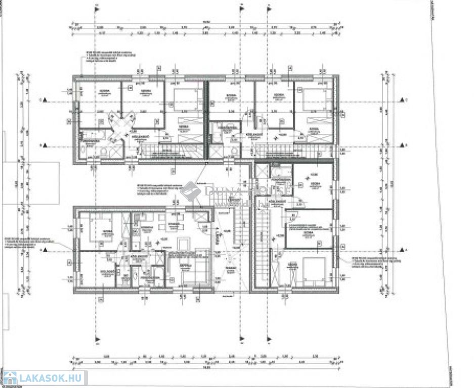
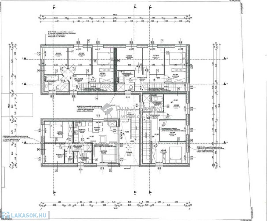
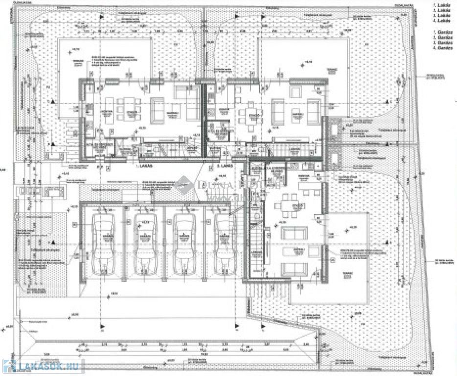
Hódmezővásárhely, Új-Kishomok kertvárosias részén Török Csongor terve alapján készült projekt épül:- 4 lakás (3 belső kétszintes )- 4 garázs kulcsrakész állapotban kerülnek átadásra. A modern lakások terasszal és saját kertrésszel rendelkeznek. Néhány műszaki jellemző:- 20 cm-es hőszigetelés- hármas üvegezésű nyílászárók, mely biztosítja a kiváló hőszigetelést- fő falazat és a födém földrengésbiztos vasbeton szerkezet- komplett fűtésrendszer (padlófűtés energiatakarékos hőszivattyúval, mely megújuló energiának minősül) MINDEN TOVÁBBI RÉSZLETTEL, VALAMINT MŰSZAKI ALAPRAJZZAL ÉS SZEMÉLYESMEGTEKINTÉSSEL KAPCSOLATBAN VÁROM HÍVÁSÁT!FORDULJON HOZZÁM BIZALOMMAL!
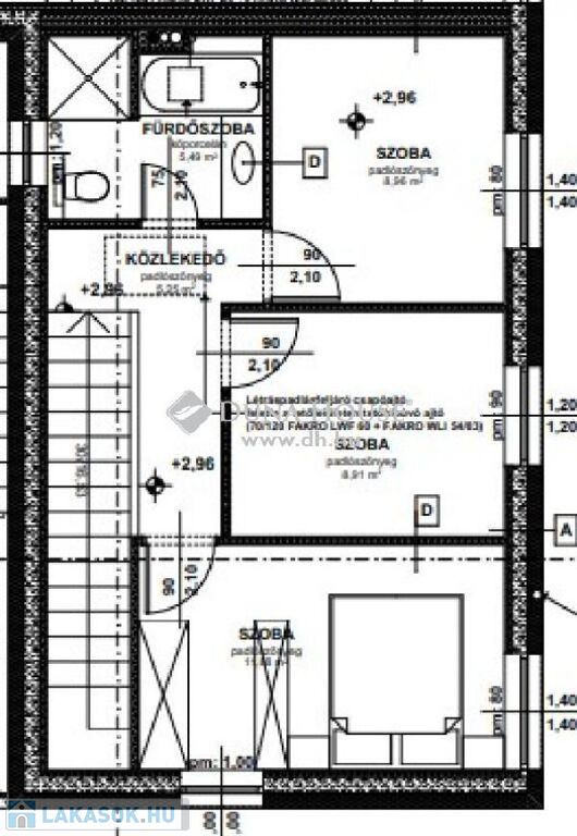
.A 3.számú lakás 87,66 m2.Térfelosztása az alábbi:Földszint: nappali, konyha-étkező, háztartási helyiség, WC, előtér,Emelet: 3 külön bejáratú szoba, fürdő és közlekedő. A környezettel való kapcsolatot a 24,59 m2-es terasz és a kizárólagos használatú saját kert biztosítja.
Össz.terület: 99,96 m2 ( 1/2 terasszal)- padlófűtés energiatakarékos hőszivattyúval- Aereco szellőző rendszer- beépített motoros alumínium redőny- hideg- és meleg burkolat , szaniterek
Gépkocsi számára a 14,54 m2-es garázs áll a rendelkezésre, melynek ára 9.900.000,- Ft.
Néhány műszaki jellemző:- 20 cm-es hőszigetelés- hármas üvegezésű nyílászárók, mely biztosítja a kiváló hőszigetelést- fő falazat és a födém földrengésbiztos vasbeton szerkezet- komplett fűtésrendszer (padlófűtés energiatakarékos hőszivattyúval, mely megújuló energiának minősül) MINDEN TOVÁBBI RÉSZLETTEL, VALAMINT MŰSZAKI ALAPRAJZZAL ÉS SZEMÉLYESMEGTEKINTÉSSEL KAPCSOLATBAN VÁROM HÍVÁSÁT!FORDULJON HOZZÁM BIZALOMMAL!
Tisztelt ingatlantulajdonos !
Slivkáné Zsiros Éva vagyok, a Duna House Oroszlán utcai irodájában dolgozom. Ingatlanok eladásában, vételében, bérbeadásában, értékbecslésben, hitelnyújtásban, CSOK, babaváró támogatásban, energetikai tanúsítvány készítésében tudok segítséget nyújtani. Forduljon hozzám bizalommal.

Lakás részletei

Ár: 78 900 000 Ft
Méret: 99 négyzetméter
Azonosító: 11451501
Irodai azonosító: PR056352/LK/16704-4803886
Emelet: Földszint
Építőanyag: Tégla
Fűtés jellege: Hőszivattyú
Ingatlan állapota: Épülő
Építési év: Új építésű
Egész szobák: 4

Térkép


Így keressen lakást négy egyszerű lépésben. Csupán 2 perc, kötelezettségek nélkül!

Szűkítse a lakások
listáját
Válassza ki a megfelelő
lakást
Írjon a hirdetőnek
Várjon a visszahívásra