Eladó lakás Hévíz 121 383 000 Ft

Leírás

A Gold Balaton Home Ingatlaniroda megvételre kínálja a 44535-ös sorszámú HÉVÍZI TÁRSASHÁZI LAKÁSÁT


Rövid időn belül költözhető a földszinti lakás!

Zöldövezeti elhelyezkedés, panorámás kilátással.

Tó távolsága 1800 méter.

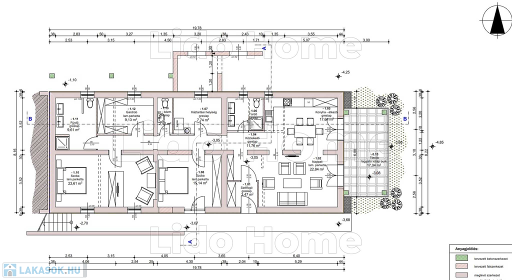
A lakás helyiségei: Amerikai konyhás nappali 40,48 m2, szoba 23,61 m2, szoba 15,14 m2, szoba 9,13 m2, fürdőszoba 9,61 m2, fürdőszoba 5 m2, háztartási helyiség 7,74 m2, külön WC 2,2 m2, közlekedő 11,76 m2, szélfogó 3,47 m2, fedett terasz 17,04 m2.


Műszaki paraméterek:

- 2019-ben épült lakás szigeteléssel ellátott

- műanyag nyílászárók hőszigetelt üvegezéssel

- fűtés kondenzációs kazánnal megoldott

- klíma beépítésre előkészítve


Az ingatlan egyéb jellemzői:

- 200 m2 területű saját udvar

- térkővel lerakott udvarrész

- autóbeálló

- elektromos kapu

- közös tároló

Az ingatlan állandó lakhatásra, akár nyaralónak is kitűnő választás!

Amennyiben hirdetésem felkeltette érdeklődését, kérem keressen bizalommal!


Irodánk szolgáltatásai igény esetén: ügyvéd, energetikai tanúsítvány, hitelügyintézés, értékbecslés, statikus, földmérő, belsőépítész. Biztonság, szakértelem - GOLD BALATON HOME - „Élj ott, ahol mások nyaralnak”

Lakás részletei

Ár: 121 383 000 Ft
Méret: 137 négyzetméter
Azonosító: 11532069
Irodai azonosító: 230044535
Emelet: Földszint
Építőanyag: Tégla
Fűtés jellege: Cirkó
Ingatlan állapota: Kitűnő
Építési év: 6-10 éves
Egész szobák: 4

Egyéb jellemzők

  • Erkély

Így keressen lakást négy egyszerű lépésben. Csupán 2 perc, kötelezettségek nélkül!

Szűkítse a lakások
listáját
Válassza ki a megfelelő
lakást
Írjon a hirdetőnek
Várjon a visszahívásra