Eladó lakás Helvécia 57 500 000 Ft

Leírás

​Kecskemét közvetlen közelében, központtól kb 8 perc autóútra lakóparkban, önálló kertes lakások eladók!

Kecskemét gyorsan fejlődő városrészében eladó új építésű lakások.
A házak összközműves, betonos utcában találhatóak.
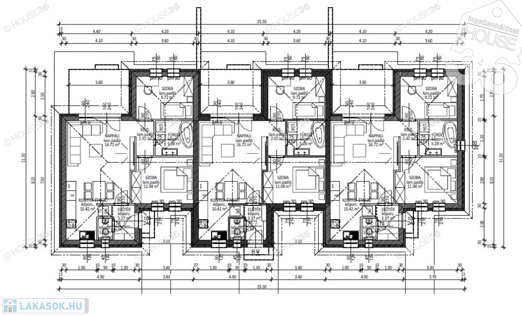
A lakások 60,18 m2-es, nappali + 2 szobás, külön wc-s, külön gépkocsi beállási lehetőséggel ellátottak.
255 m2 telekhányaddal.
A parkba összesen 4 X 3 lakásos tömbök lesznek elhelyezve.

Egyéb paraméterek:

Wienerberger Porotherm X-Therm tégla (+ 40 % hőtartás)
15 cm szigetelés
hőszivattyús fűtésrendszer
Klíma
padlófűtés
prémium minőségű műanyag nyílászárók
szaniterek 1 millió forintig az árban
hideg - meleg burkolatok 8500.-/ m2
ár garancia
idő garancia
várható átadás szerződéskötéstől számított 10-12 hónap ​


RÉGI MEGY, ÚJ JÖN? KERESSEN BIZALOMMAL!! SEGÍTEK MEGOLDANI!!

Figyelem, az adatlap megbízóinktól kapott adatok alapján készültek, pontosságáért felelősséget nem tudunk vállalni!
A HOUSE36 kínálatában található összes ingatlannal kapcsolatban tudok felvilágosítást nyújtani.
Szolgáltatásaink ügyfeleink részére díjmentesek!
Az iroda legfrissebb, aktuális kínálatát a HOUSE36 saját weboldalán találja!

Lakás részletei

Ár: 57 500 000 Ft
Méret: 60 négyzetméter
Azonosító: 11589510
Irodai azonosító: 3617348-4872139
Emelet: 1. emelet
Építőanyag: Tégla
Fűtés jellege: Egyéb
Ingatlan állapota: Épülő
Építési év: Új építésű
Egész szobák: 3

Egyéb jellemzők

  • Kocsibeálló

Térkép


Így keressen lakást négy egyszerű lépésben. Csupán 2 perc, kötelezettségek nélkül!

Szűkítse a lakások
listáját
Válassza ki a megfelelő
lakást
Írjon a hirdetőnek
Várjon a visszahívásra