Eladó lakás Gyula 52 300 000 Ft

Leírás

Gyula belvároshoz közel, mégis parkosított környezetben új építésű lakások eladók! Döntse el Ön hogy milyen legyen! Mi adjuk a terveket, Ön választhatja ki a belső elrendezést és a stílust. Formája saját ízlésére!

Íme a paraméterek:
Lokáció: az ingatlan frekventált helyen található, közel a belvároshoz, de ha nyugodt környezetre vágyik, a közeli parkban ezt is megtalálja.
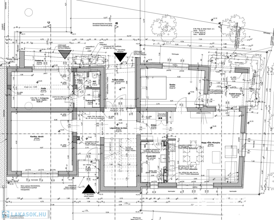
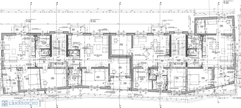
Ingatlanok: 2 épületrészből álló, kétszintes társasházban 13 lakás és 9 garázs mellett 3 iroda is ki lesz alakítva, melyek közül néhány már gazdára talált.
Lakások, melyek még eladó sorban vannak:
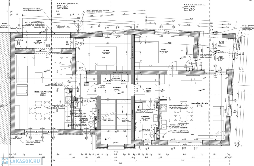
1. emeleti ingatlanok:
- alapterület: 78,32 nm-es (amerikai konyhás nappali+3 szoba, 2 fürdőszoba, erkély), 82 nm-es (amerikai konyhás nappali+2 szoba, gardrób, loggia, WC, fürdőszoba), 64,37 nm (amerikai konyhás nappali+1 szoba, előtér, fürdőszoba, loggia), 58,1 nm (amerikai konyhás nappali+1 szoba, előtér, fürdőszoba, loggia)
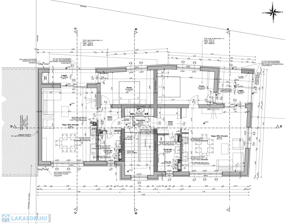
2. emeleti ingatlanok:
- alapterület: 78,32 nm-es (amerikai konyhás nappali+3 szoba, 2 fürdőszoba, erkély), 82 nm-es (amerikai konyhás nappali+2 szoba, gardrób, loggia, WC, fürdőszoba), 64,34 nm (amerikai konyhás nappali+1 szoba, előtér, fürdőszoba, loggia), 58,07 nm (amerikai konyhás nappali+1 szoba, előtér, fürdőszoba, loggia)
műszaki paraméterek:
- műanyag nyílászárók 3 rétegű üvegezéssel, alumínium redőnyökkel
- vasbeton lábazat AUSTROTHERM szigeteléssel
- 30 cm-es tégla falazat, 12 cm-es külső hőszigeteléssel
- 14 cm-es födémszigetelés
- lakások között 25 cm vastag hanggátló falak
- fűtés: hőszivattyú, padlófűtés, hűtő-fűtő klíma
- 32 A lakásonként
Garázsok melyek még eladó sorban vannak:
- 4 db 17 nm alapterületű és 1 db 18,74 nm alapterületű
- beton lábazat, 30 cm-es tégla falazat, külső hőszigeteléssel
- elektromos HÖRMANN garázskapuval
- saját villanyórával
Irodák:
Földszinten:
- 28,89 nm (iroda+mosdó, kézmosó)
- 39,26 nm (iroda, tároló, teakonyha, mosdó, kézmosó)
- 18,69 nm (iroda, tároló, teakonyha, mosdó, kézmosó)
műszaki paraméterek: a lakásokkal megegyezően

Az ingatlanok a fenti műszaki tartalommal kerülnek átadásra, kulcsrakészen, melynek ára 900.000 Ft/nm.

A beruházás megkezdésének tervezett időpontja 2025.12. hó.

Az engedélyes tervek rendelkezésre állnak, melyek megtekinthetőek irodánkban előre egyeztetett időpontban.

Jöjjön el! Álmodja meg és legyen részese a kivitelezésnek! Olyan lesz, amilyennek Ön szeretné!

További részletekkel kapcsolatban várom hívását!
(További képekért és információkért kérem hívjon!)

Lakás részletei

Ár: 52 300 000 Ft
Méret: 58 négyzetméter
Azonosító: 11541859
Irodai azonosító: 696372
Erkély mérete: 6.00 négyzetméter
Építőanyag: Tégla
Fűtés jellege: Hőszivattyú
Ingatlan állapota: Kitűnő
Komfort fokozat: Összkomfort
Egész szobák: 2
Nappalik: 1

Egyéb jellemzők

  • Erkély
  • Garázs
  • Klíma
  • Lift
  • Pince
  • Kertkapcsolat

Így keressen lakást négy egyszerű lépésben. Csupán 2 perc, kötelezettségek nélkül!

Szűkítse a lakások
listáját
Válassza ki a megfelelő
lakást
Írjon a hirdetőnek
Várjon a visszahívásra