Eladó lakás Győr 97 000 000 Ft

Leírás

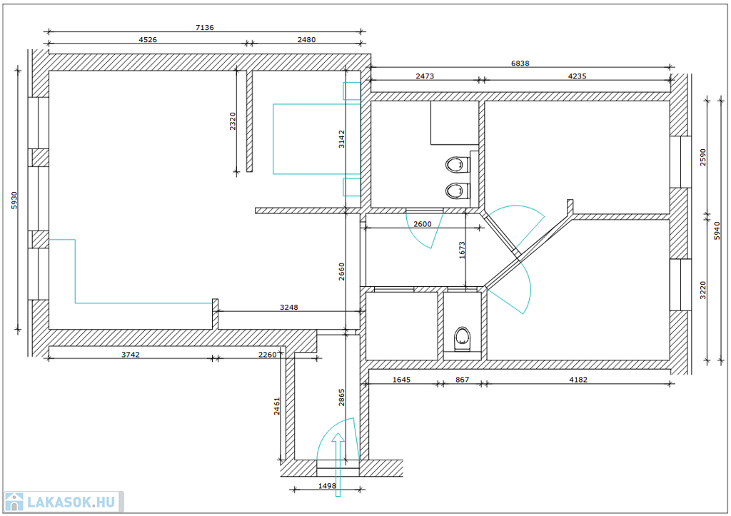
Győrben, Nádorvárosban, a Honvéd utcában kertre néző, erkélyes lakás eladó. A társasháznak saját hőközpontja van, így a lakás egyedi távfűtéses. A konyhában és a fürdőszobában padlófűtés is található.

Az ingatlan kiváló elhelyezkedésű, világos. A belváros gyalog 10 perc alatt elérhető. A közelben óvoda, bölcsőde, iskolák, edzőterem és élelmiszerbolt is található.

Az ingatlan per- és tehermentes.

Ugyanitt a zárt udvarban, modern garázssoron egy 15 m2-es garázs is eladó (ára: 12,5 M Ft). A garázs csak akkor eladó külön, amennyiben a lakás új tulajdonosa nem tart rá igényt.

Ingatlanosok segítségét nem kívánjuk igénybe venni.

Lakás részletei

Ár: 97 000 000 Ft
Méret: 89 négyzetméter
Azonosító: 11570896
Cím: Honvéd utca 7.
Erkély mérete: 8.00 négyzetméter
Emelet: 1. emelet
Építőanyag: Tégla
Fűtés jellege: Házközponti (egyedi mérővel)
Ingatlan állapota: Felújított
Komfort fokozat: Dupla komfort
Építési év: 21-50 éves
Elhelyezkedés: Társasház
Tulajdonviszony: Saját
Bútorozott: Bútorozott
Kert: Közös telek
Egész szobák: 2
Fél szobák: 2

Egyéb jellemzők

  • Erkély
  • Klíma
  • Lift
  • Pince
  • Kertkapcsolat

Így keressen lakást négy egyszerű lépésben. Csupán 2 perc, kötelezettségek nélkül!

Szűkítse a lakások
listáját
Válassza ki a megfelelő
lakást
Írjon a hirdetőnek
Várjon a visszahívásra