Eladó lakás Győr 62 520 750 Ft

Leírás


Győr belvárosától 10 perces autóútra, Szitásdomb II. Lakóparkban 2025 decemberi átadással 25 lakásos társasházban magas minőségi tartalommal épülő lakások eladók.

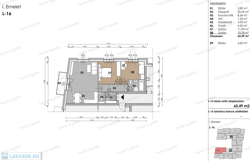
Az 1. emeleten található 65,49 m²-es lakásban amerikai konyhás nappali, 2 szoba, fürdőszoba, külön WC, közlekedő, előtér kerül kialakításra. Nappaliból 4,20 m²-es erkély nyílik.

A lakás fűtéskész ára: 62.520.750 Ft. Kulcsrakész befejezés kérhető.

Gépkocsibeálló ára: 1.000.000 Ft + Áfa/db. A lakáshoz 2 db gépkocsibeállót kell vásárolni.

MŰSZAKI JELLEMZŐK:

A tárasház 30 cm-es falazóelemből, 20 cm-es homlokzati szigeteléssel épül. A műanyag, hang-és hőszigetelt, Internorm nyílászárók kívül antracit színűek. Az ár tartalmazza az alumínium elektromos redőny előkészítését és a redőny dobok beépítését. Az ingatlan hűtése/fűtése hőszivattyúval történik, egyedi hőmennyiségmérővel és hőmérséklet szabályozó termosztáttal, így nincs szükség klímára. Melegvíz előállítás is hőszivattyúval megoldott. A társasház udvaran térkövezett gépkocsibeállók kerülnek kialakításra.

KÖRNYÉK JELLEMZŐI:

Tárasház új kialakítású részen, a Szitásdomb II. Lakóparkban épül. A közelben boltok, pékség, babauszoda, szépségszalon, játszótér található. A környéken új és újszerű családi házak, társasházak épültek/épülnek.  Győr-Belvárosa, az Ipari Park, az AUDI, az autópálya elkerülő könnyen elérhető.

ELŐNYÖK:

Modern, új építésű társasház, ami minőségi anyagokból épül.

Új lakópark, ahol csak új építésű ingatlanok találhatóak.

2025 év végi átadás.

Belváros, az Ipari Park, az autópálya elkerülő könnyen elérhető.

Ha szeretné megtekinteni a helyszínt, vagy bővebb tájékoztatást szeretne kérni, várom hívását akár hétvégén is!

Díjmentes, bankfüggetlen hitelügyintézéssel állunk rendelkezésére.

A hirdetésben feltüntetett képek illusztrációk.

Lakás részletei

Ár: 62 520 750 Ft
Méret: 66 négyzetméter
Azonosító: 11524371
Irodai azonosító: 196400727
Emelet: Földszint
Építőanyag: Tégla
Ingatlan állapota: Kitűnő
Komfort fokozat: Összkomfort
Építési év: Új építésű
Egész szobák: 3

Egyéb jellemzők

  • Lift

Így keressen lakást négy egyszerű lépésben. Csupán 2 perc, kötelezettségek nélkül!

Szűkítse a lakások
listáját
Válassza ki a megfelelő
lakást
Írjon a hirdetőnek
Várjon a visszahívásra