Eladó lakás Győr 63 100 000 Ft

Leírás

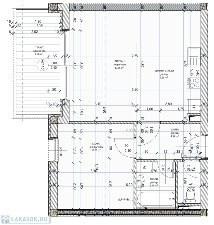
Győr-Nádorvárosban 25 lakásos liftes társasház harmadik emeletén, 49 m² hasznos alapterülettel, 12,21 m2-es szobával és tágas nappali + konyha + étkező kialakítással, különálló fürdőszobával és toalettel, valamint 8,36 m²-es terasszal rendelkező, prémium minőségű, ÚJ ÉPÍTÉSŰ lakás eladó.

Emeltszintű szerkezetkész ár: 63 100 000 HUF
Igény esetén kulcsrakész kivitelezés.
(A látványterv csupán tájékoztató jellegű)
Otthon Start hitel igénybe vehető az ingatlanra!


Főbb jellemzők
- ÚJ ÉPÍTÉSŰ
- Emeltszintű szerkezetkész állapot
- POROTHERM 30 N+F falazóelem
- 25-ös Leier hanggátló belső válaszfalazat
- 10 cm széles homlokzati szigetelés
- 6 légkamrás, 3 rétegű nyílászárók
- radiátoros hőleadás
- Prémium anyaghasználat – hosszú távú értékállóság

Ügyfeleink ingatlan vásárlását hozzáértő hitel tanácsadással, illetve teljes körű, ingyenes banki ügyintézéssel segítjük (OTTHON START hitel, támogatott és piaci lakáshitelek, babaváró hitel, személyi kölcsön vagy akár Lakástakarék Pénztár)
• Kiemelt banki kedvezményeket nyújtunk partner pénzintézeteink kínálatából (kedvezményes kamat, ingyenes előtörlesztés, egyedi akciók)
• Az összes bank ajánlata egy helyen !
• Kényelmi szolgáltatásként lakásbiztosítás, illetve hitelfedezeti biztosítás megkötésében is segítséget nyújtunk.

Lakás részletei

Ár: 63 100 000 Ft
Méret: 53 négyzetméter
Azonosító: 11583705
Irodai azonosító: 123554
Cím: Győr
Építőanyag: Kérdezzen rá a hirdetőtől »
Fűtés jellege: Cirkó
Ingatlan állapota: Átlagos
Építési év: Új építésű
Egész szobák: 2

Egyéb jellemzők

  • Erkély

Így keressen lakást négy egyszerű lépésben. Csupán 2 perc, kötelezettségek nélkül!

Szűkítse a lakások
listáját
Válassza ki a megfelelő
lakást
Írjon a hirdetőnek
Várjon a visszahívásra