Eladó lakás Győr 58 990 000 Ft

Leírás


Győr-Szabadhegy mellékutcájában új építésű 28 lakásos társasházban különböző alapterületű lakások eladók.

A modern társasházban nappali + 1 szobás, nappali + 2 szobás és nappali + 3 szobás lakások kerülnek kialakításra. A földszinti lakások kertkapcsolattal és terasszal, az emeleti lakások erkéllyel, galériával és tetőterasszal, a penthouse lakások tetőterasszal rendelkeznek.

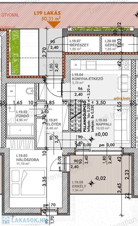
A meghirdetett 1. emeleten található 50,31 nm-es lakásban az alsó szinten amerikai konyhás nappali, szoba, fürdőszoba és előtér található. Nappaliból 7,94 nm-es erkély nyílik. A nappaliból vezető lépcsőn keresztül érhető el a galéria, ami akár hálószobának is alkalmas. 

A lakás fűtéskész ára: 58.990.000 Ft. Kulcsrakész befejezés kérhető.

Gépkocsibeállló ára: 2.900.000 Ft

Fedett gépkocsibeálló ára: 4.900.000 Ft

Lehetőség van tároló vásárlására is, ára: 3.500.000 Ft – 3.900.000 Ft

A társasház 30 cm-es falazóelemből, 15 cm-es homlokzati hőszigeteléssel épül. A homlokzati műanyag nyílászárók 3 rétegűek. Az ingatlanok fűtése kondenzációs gázkazánnal történik, lakásonként egyedi hőmennyiségmérővel és hőmérséklet szabályozó termosztáttal, hőleadás padlófűtéssel. Az ár 1 db klímaelőkészítést tartalmaz.

Várható átadás: 2027 tavasz

Bővebb információkért forduljon hozzám bizalommal.

Hétköznap és hétvégén is várom hívását!

Díjmentes, bankfüggetlen hitelügyintézéssel állunk rendelkezésére.

A hirdetésben feltüntetett képek illusztrációk.

Lakás részletei

Ár: 58 990 000 Ft
Méret: 50 négyzetméter
Azonosító: 11568972
Irodai azonosító: 196400798
Emelet: 1. emelet
Építőanyag: Tégla
Ingatlan állapota: Kitűnő
Komfort fokozat: Összkomfort
Építési év: Új építésű
Egész szobák: 3

Egyéb jellemzők

  • Lift

Így keressen lakást négy egyszerű lépésben. Csupán 2 perc, kötelezettségek nélkül!

Szűkítse a lakások
listáját
Válassza ki a megfelelő
lakást
Írjon a hirdetőnek
Várjon a visszahívásra