Eladó lakás Győr 55 490 000 Ft

Leírás


Győr-Moson-Sopron vármegye, Győr, Adyváros, eladó 2 és fél szobás, erkélyes panellakás 4 emeletes társasházban



KIZÁRÓLAG IRODÁNK KÍNÁLATÁBAN!



Győr, Adyváros, Ifjúság körúton eladó teljesen felújított lakás



A közelben posta, élelmiszerboltok, Győr Pláza, kórház, iskolák, óvodák, buszmegállók, mind-mind néhány perc sétára elérhető.

Földszinten saját tárolóval rendelkezik.

A társasház nem közvetlen az Ifjúság körútra néz, arra merőleges.

Parkolási lehetőség bőséges.

A 2 emeleten elhelyezkedő lakás 4 éve teljes – szakszerű, fotókkal dokumentált - felújítást kapott:

- erkély festése, burkolása, új korlát, üvegezés, kétoldali védő üvegezés szintén

- falak glettelése, festése, külső falak belülről történő szigetelése

- összes burkolat cseréje

- új konyha áthelyezésre került a hallba, így egy újabb fél szoba alakulhatott ki.

- fürdőszobába új zuhanyzó és mosdó került

- wc burkolása (hátsó falára is megvan a csempe, a társasházi szennyvízvezeték cseréje után pótolható)

- villanyvezeték réz (32A)

- nagyobbik hálószoba álmennyezetet kapott hangulatos ledes világítással

- a kisebbik szobába és a nappaliba is hűtő-fűtő klíma került beszerelésre

- a radiátorok a legmodernebbre lettek cserélve (fűtése távhő)

- ablakok kétrétegű hő és hangszigeteltek, redőnnyel, szúnyoghálóval szereltek.

- bejárati ajtó több ponton záródó műanyag, összes belső ajtó is új.

- előszobákban (a konyhabútorral harmonizáló) hatalmas beépített szekrény segíti a tárolást



A lakás a fentiekkel felújítva megkapta a A+ os energetikai besorolást!

 

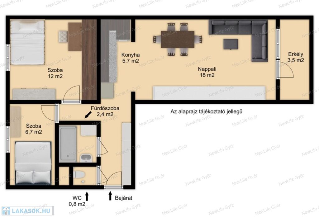
Elosztása: Nappali erkéllyel, hálószoba, egy félszoba, fürdőszoba nagy zuhanyzóval, külön WC, nagy előszoba. 



A társasház tiszta, rendezett, lakói összetartó közösséget alkotnak.



Az ingatlanpiacon csak néhány ilyen igényesen felújított panellakás van a kínálatban, a mi ráadásul 4 emeletes társasházban van.

Ne maradjon le róla!



A jelen hirdetésben rögzített, az ingatlannal kapcsolatos adatok, információk az Eladó/Megbízó tájékoztatása alapján kerültek meghatározásra.





Irodánkban az alábbiakkal tudjuk segíteni a gyors és megbízható ügyintézést:

-bankfüggetlen hitelügyintézés, CSOK

-energetikai tanúsítvány

-építésztervezés

-értékbecslés

-ügyvédi szerződések, jogi tanácsadás

Lakás részletei

Ár: 55 490 000 Ft
Méret: 54 négyzetméter
Azonosító: 11582348
Irodai azonosító: 718800701
Építőanyag: Panel
Fűtés jellege: Távfűtés
Ingatlan állapota: Felújított
Komfort fokozat: Összkomfort
Egész szobák: 2
Fél szobák: 1

Egyéb jellemzők

  • Lift

Így keressen lakást négy egyszerű lépésben. Csupán 2 perc, kötelezettségek nélkül!

Szűkítse a lakások
listáját
Válassza ki a megfelelő
lakást
Írjon a hirdetőnek
Várjon a visszahívásra