Eladó lakás Győr 53 750 000 Ft

Leírás

Győrszentiván központjában épülő, 5 lakásos ház lakásai közül már csak 2 elérhető!
SAJÁT OTTHON MEGFIZETHETŐ ÁRON! Tökéletes első otthon vagy befektetés!

Győrszentiván az AUDI gyár szomszédságában található, pár percre az 1-es főúttól és az M1 autópályától.

Az 1241 m2-es 2 utcafrontos telken külön bejárattal rendelkező, 5 lakás és egy üzlet, valamint a másik utcáról megközelíthető, külön bejáratú önálló családi ház kerül felépítésre.
Az épület jól átgondolt, praktikus alaprajzú, a környezetébe illő, mégis modern megjelenésű, ahol a homlokzatok kialakításánál, a minél nagyobb benapozottság fontos szempont volt.

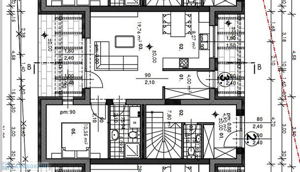
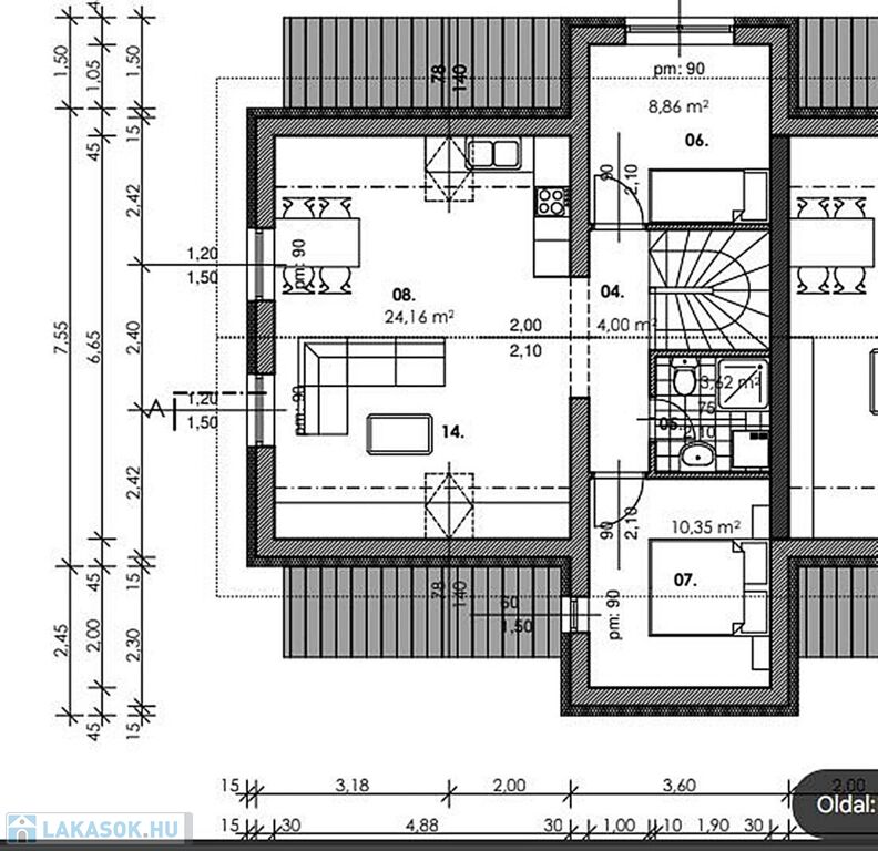
A nettó 65m2-es belső 2 szintes lakás helyiségei:
Földszintről nyíló bejárat, közlekedő és zuhanyzó
Emelet: amerikai konyhás nappali 24,16 m2, hálószoba 10,35 m2, hálószoba 8,86 m2, fürdőszoba 3,62 m2, közlekedő 4 m2
.
Az ár emelt szintű fűtéskész állapotra vonatkozik és TARTALMAZZA a telekhányadot és az 5 %-os ÁFÁT.
Építkezés megkezdődött, , befejezés 2026. II. negyedév,
Kulcsrakész befejezés 2026. IV. negyedév. Ár egyéni egyeztetéssel

Megbízható, leinformálható kivitelező!

Az L1 lakás és az üzlet már elkelt!

Műszaki tartalom:
- főfalak: Porotherm N+ F 30 típusú tégla
- válaszfalak: Porotherm 10 N+F válaszfaltégla
- 6 légkamrás, szürke színű, Kömmerling műanyag nyílászárók 3 rétegű hőszigetelt üveggel
- redőny előkészítés
- homlokzati falak 15 cm vastag BAUMIT grafitos polisztirol hőszigeteléssel
- Tető: antracit színű beton cserép
- szintek között monolit vasbeton födém
- A lapos tetők csapadékvíz elleni szigetelése PVC vízszigetelés
- meleg víz ellátást és a fűtést 24 kW-os kondenzációs kombi gázkazán biztosítja, radiátoros hőleadókkal vagy padlófűtéssel / választható/
- vasbeton szerkezetű, húzott lépcső

Az udvaron kialakításra kerül még 3 db térkövezett kocsibeálló, melynek ára 1.000.000,- Ft.
NINCSENEK REJTETT KÖLTSÉGEK!

Közelben található: üzletek, iskola, óvoda, posta, orvosi rendelő, gyógyszertár, dohánybolt, étterem.

Irodánk bankfüggetlen hitel-tanácsadással segíti döntésében. CSOK, és államilag kamattámogatott hitelek igényelhetők.
Minden családtámogatás igénybe vehető! Döntsön gyorsan, hogy ne maradjon le róla!
Várom hívását!

Lakás részletei

Ár: 53 750 000 Ft
Méret: 65 négyzetméter
Azonosító: 11569605
Irodai azonosító: 122378
Cím: Győr
Emelet: 1. emelet
Építőanyag: Kérdezzen rá a hirdetőtől »
Fűtés jellege: Cirkó
Ingatlan állapota: Átlagos
Építési év: Új építésű
Egész szobák: 3

Egyéb jellemzők

  • Erkély

Így keressen lakást négy egyszerű lépésben. Csupán 2 perc, kötelezettségek nélkül!

Szűkítse a lakások
listáját
Válassza ki a megfelelő
lakást
Írjon a hirdetőnek
Várjon a visszahívásra