Eladó lakás Győr 49 900 000 Ft

Leírás


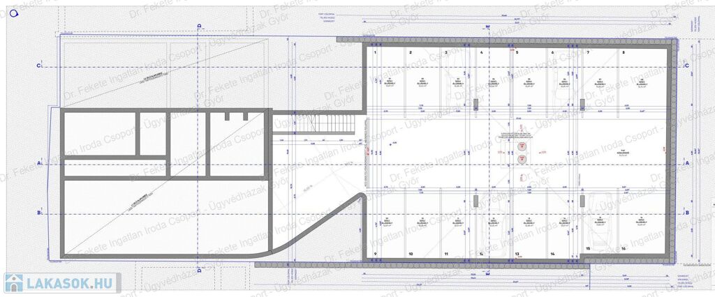
Győr egyik legkeresettebb városrészében, Nádorváros dinamikusan fejlődő környezetében kínálunk megvételre egy új építésű, 15 lakásos társasház egyik kiváló adottságú lakását, a 2. vagy a 3. EMELETEN.

A lakások 30 %-a már elkelt. NE MARADJ LE! Fűtéskész értékesítés.

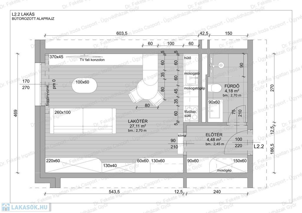
A 3. emeleten elhelyezkedő, DK-i tájolású, franciaerkélyes, 35,77 nm-es garzonlakás tökéletes választás:

– első lakásnak,

– kiadásra (albérlet / rövid táv),

– vagy értékálló befektetésként.

 

Világos, élhető tér – alacsony rezsivel

A DK-i fekvésnek köszönhetően a lakás egész nap világos, míg az A / A+ energetikai besorolás garantálja az alacsony fenntartási költségeket – ami ma már nem extra, hanem elvárás.

 

Műszaki tartalom – ami hosszú távon számít

✔ 3 rétegű hőszigetelt műanyag nyílászárók

✔ Redőny előkészítés

✔ 20–30 cm vasbeton teherhordó szerkezet

✔ 20 cm kőzetgyapot homlokzati hőszigetelés

✔ Intenzív zöldtető rendszer

✔ Közösségi tetőterasz

✔ Többrétegű talajnedvesség elleni szigetelés

Gépészet:

✔ Központi gázkazán (2 db)

✔ Padlófűtés – modern komfort

✔ Elektromos törölközőszárító - kiállás

✔ Klíma előkészítés - opcionális, külön fizetendő

 

Extra lehetőségek (limitált darabszám!)

– Mélygarázs beálló: 8,5 M Ft / db (16 db)

– Tároló (2–2,59 nm): 1,75 M Ft / db (6 db)

 

Átadás: Fűtéskész állapotban, tervezetten 2027-ben

Miért most érdemes lépned?

– Új építés → nincs felújítási kockázat

– Nádorváros → stabil, könnyen kiadható lokáció

– Kis méret → magas hozam, gyors bérbeadás

– Korai foglalás → jobb ár és választék

Ne csak gondolkodj rajta – foglald le most, és biztosítsd a helyed Győr egyik legígéretesebb projektjében!

A képek és látványtervek az értékesítést szolgálják, illusztrációk.

 

 

Lakás részletei

Ár: 49 900 000 Ft
Méret: 36 négyzetméter
Azonosító: 11613212
Irodai azonosító: 210600661
Cím: Szigethy A L2
Emelet: 3. emelet
Építőanyag: Tégla
Ingatlan állapota: Kitűnő
Komfort fokozat: Összkomfort
Építési év: Új építésű
Egész szobák: 1

Egyéb jellemzők

  • Lift

Így keressen lakást négy egyszerű lépésben. Csupán 2 perc, kötelezettségek nélkül!

Szűkítse a lakások
listáját
Válassza ki a megfelelő
lakást
Írjon a hirdetőnek
Várjon a visszahívásra