Eladó lakás Győr 46 000 000 Ft

Leírás

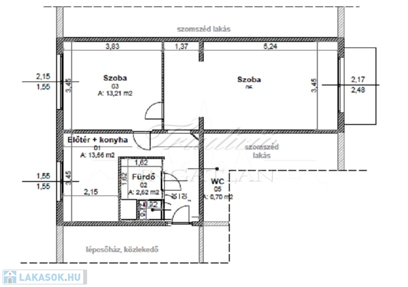
A KASSÁK LAJOS UTCÁBAN 2 SZOBA HALLOS, 53 NM-ES, 3. EMELETI LAKÁS, GARÁZSVÁSÁRLÁSI LEHETŐSÉGGEL ELADÓ!

Csak a Tradíció Ingatlan kínálatában!

Adyváros kedvelt utcájában, a Kassák Lajos utcában kínálom eladásra ezt a 4 emeletes paneltömb, 3. emeletén lévő, 2 szoba hallos, 53 nm-es jó állapotú panel lakást.
Az ingatlan pár évvel ezelőtt egy felújításon esett át, ekkor a fürdőszoba felújításán kívül új konyhabútor, korszerű, redőnnyel szerelt műanyag nyílászárók lettek beépítve, valamint az elektromos hálózat is kapott egy részleges felújítást.
A társasház gazdaságos fűtéséről a Távhő gondoskodik, a lakás már fűtés korszerűsített, egyedi mérőórákkal szerelt. A közös költség mindössze 10500 Ft.
A lakás közös tárolóval rendelkezik.
Az ingatlanhoz igény esetén garázs is vásárolható, melynek az ára 11 M Ft.
A Gress lappal burkolt jó állapotú garázs saját, igény esetén bővíthető, 16 Amperes villanyórával rendelkezik.

Az ingatlan per, teher és igénymentes, akár azonnal birtokba vehető.
Az ingatlannal kapcsolatban részletekért, bővebb információkért és megtekintésért kérem HÍVJON!

( a kulcs nálam, így szinte bármikor megtekinthető)

A Tradíció Ingatlaniroda az alábbi szolgáltatásokkal áll az ügyfelek rendelkezésére:
- lakossági és ipari ingatlanok értékesítése és bérbeadása
- díjmentes pénzügyi tanácsadás, hitelügyintézés (lakáshitelek, állami támogatások (CSOK, ÁFA) Babaváró hitel, személyi kölcsön, Lakástakarék)
- jogi háttérrel adásvételi szerződések készítése kedvező feltételekkel
- energetikai tanúsítvány készítése
- ingatlan értékbecslése
Lakások, családi házak, egyéb ingatlanok teljeskörű felújítását, átépítését, külső szigetelését vállaljuk.
Ha eladó vagy kiadó ingatlannal rendelkezik, akkor kérem keressen!

Rosenbecker Tamás

Lakás részletei

Ár: 46 000 000 Ft
Méret: 53 négyzetméter
Azonosító: 11578279
Irodai azonosító: 123099
Cím: Győr
Emelet: 3. emelet
Építőanyag: Kérdezzen rá a hirdetőtől »
Fűtés jellege: Cirkó
Ingatlan állapota:
Egész szobák: 2

Egyéb jellemzők

  • Erkély

Így keressen lakást négy egyszerű lépésben. Csupán 2 perc, kötelezettségek nélkül!

Szűkítse a lakások
listáját
Válassza ki a megfelelő
lakást
Írjon a hirdetőnek
Várjon a visszahívásra