Eladó lakás Győr 159 900 000 Ft

Leírás

Győr-Révfalu klasszikus, csendes részén, a belvárostól néhány percre kínálok megvételre egy exkluzív, belső háromszintes, ikerház jellegű lakást, amely valódi privát életteret biztosít – wellness-részleggel, tetőterasszal, saját kerttel és két zárt udvari beállóval.

Győr Révfaluban gyönyörű természeti környezetben, a Dunapart közelében kialakított lakóparkban kínálok egy azonnal birtokba vehető magas műszaki és esztétikai színvonalú otthont teljes berendezéssel. Ahol az elegancia nem hivalkodó, hanem természetes. Egy ilyen adottságú, újszerű állapotú ingatlan ritkán kerül piacra ezen a lokáción.
Reggel séta a Dunaparton, este saját wellness-részlegében feltöltődés – mindez néhány percre a belvárostól.

A lakberendező által megálmodott enteriőrben az olasz és spanyol bútorok, az egyedi beépített megoldások, a látványkandalló és az üvegfalak különleges, mégis harmonikus atmoszférát teremtenek. A nappaliból és az étkezőből közvetlen kapcsolat nyílik a térkővel burkolt teraszra és a parkosított, öntözőrendszerrel kiépített, kb. 80 m²-es, intim udvarra – tökéletes helyszín nyugodt, privát kikapcsolódáshoz

A háromszintes kialakítás jelenleg nappali + 2 szobás, azonban egyszerűen visszaalakítható nappali + 3 szobássá.
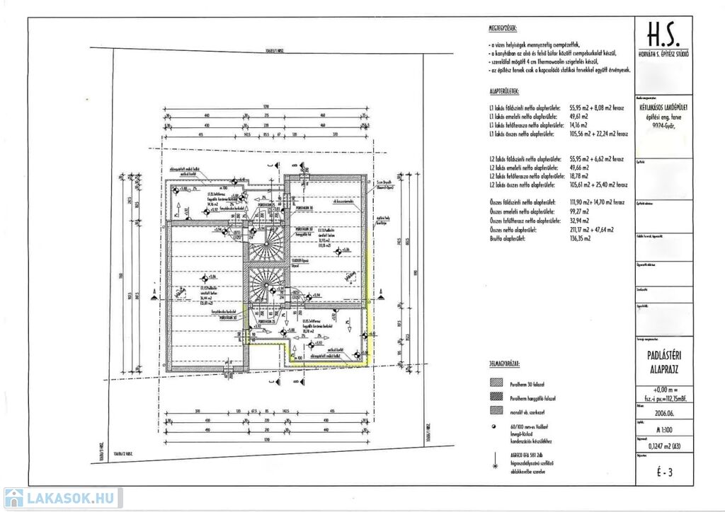
A tetőtéri wellness-szint saját szaunával és merülőkáddal a mindennapi feltöltődést szolgálja, miközben igény esetén önálló lakószintté is alakítható

Az ingatlan tehermentes, rendezett tulajdonviszonyokkal, azonnal birtokba vehető.

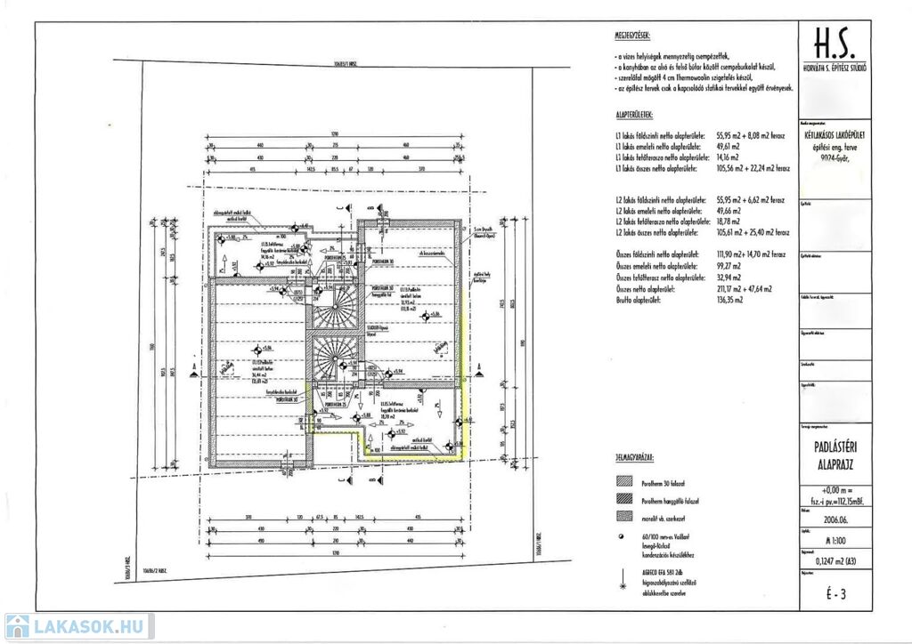
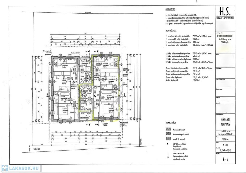
Műszaki paraméterek:
- 2007-ben épült, kétlakásos társasház
- 30 cm-es Porotherm tégla falazat
- 5 cm-es külső hőszigetelés
- Kondenzációs gázkazán biztosítja a fűtést és a melegvizet, hőleadás padlófűtéssel, fürdőkben törölközőszárító radiátor
- 3 db hűtő-fűtő klíma
- 2 rétegű műanyag nyílászárók, részben redőnnyel és szúnyoghálóval
- Riasztórendszer
- Mosó- és szárítógép WC helyiségben elhelyezve
- Egyedi olasz konyhabútor üveg frontlapokkal, fekete gránit pulttal, beépített háztartási gépekkel
- Öntözőrendszer
- Bioetanolos látványkandalló és üvegfal a nappali–étkező között
- Beépített gardrób az 1. szinten
- Kerti tároló az udvaron

A ház 2012-ben lakberendező koncepciói alapján esztétikai és belsőépítészeti megújításon esett át.

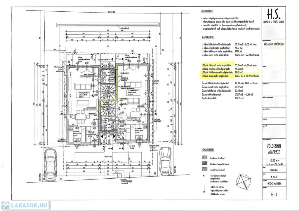
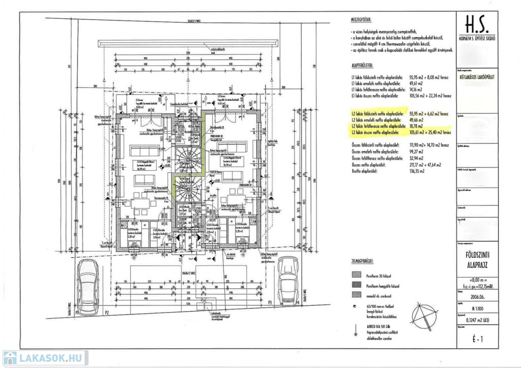
A 137,54 m² lakótérhez 6,62 m² földszinti terasz és 18,78 m² tetőterasz tartozik.

Az ingatlan része 2 db elektromos kapun keresztül megközelíthető, kizárólagos használatú, zárt udvari gépkocsibeálló

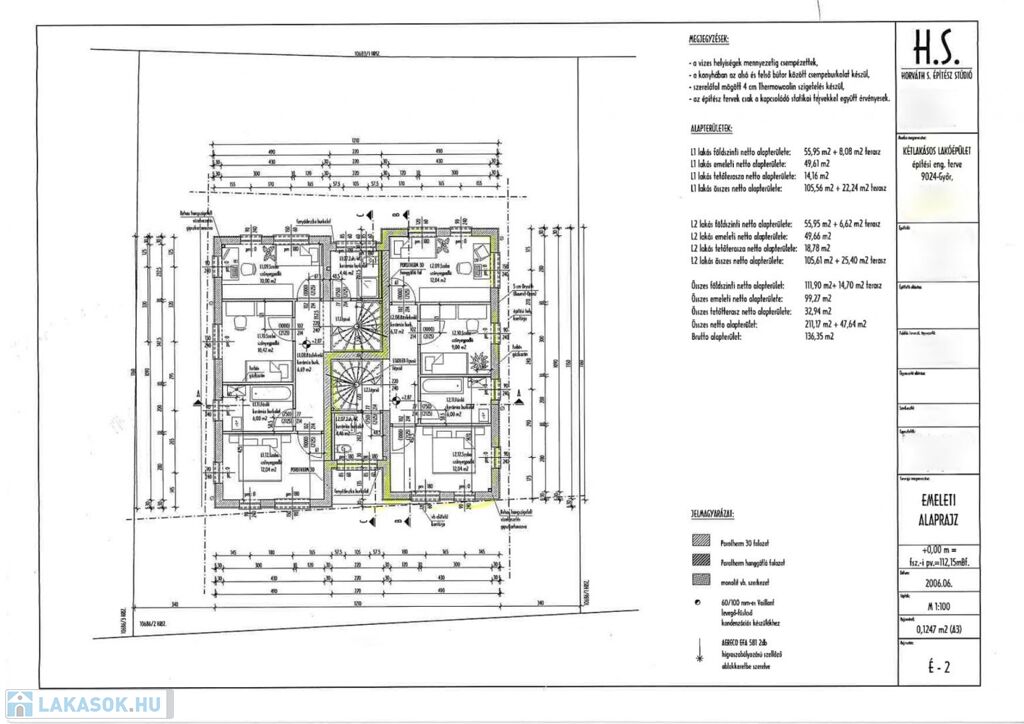
Helyiségek elosztása:
FÖLDSZINT: előszoba, konyha, étkező, nappali, külön WC
1. EMELET: közlekedő, hálószoba gardróbbal, további szoba, fürdőkádas, duplamosdós fürdőszoba, külön WC, mosógéppel
TETŐTÉR: wellness-részleg (finn szauna, kétszemélyes kád), tetőterasz merülőkáddal

A vételár tartalmazza a fotókon látható teljes bútorzatot, háztartási gépeket

Ez az ingatlan ideális választás annak, aki a belváros közelségét, a magas műszaki színvonalat és a privát pihenés lehetőségét egyetlen, kompromisszummentes otthonban szeretné megtalálni.

Révfalu egyik legjobban felszerelt, wellness-szel rendelkező otthona most elérhető.
A lakás személyes megtekintés során érzékelhető igazán.
Megtekintésért és további részletekért keressen bizalommal.

Lakás részletei

Ár: 159 900 000 Ft
Méret: 137 négyzetméter
Azonosító: 11602869
Irodai azonosító: 125324
Cím: Győr
Építőanyag: Kérdezzen rá a hirdetőtől »
Fűtés jellege: Cirkó
Ingatlan állapota:
Egész szobák: 3

Egyéb jellemzők

  • Erkély

Így keressen lakást négy egyszerű lépésben. Csupán 2 perc, kötelezettségek nélkül!

Szűkítse a lakások
listáját
Válassza ki a megfelelő
lakást
Írjon a hirdetőnek
Várjon a visszahívásra