Eladó lakás Győr 149 000 000 Ft

Leírás

Győr történelmi belvárosától pár percre, egy igazán egyedi lakást ajánlok figyelmébe:
Ikonikus épület, műemlékjellegű barokk lakóház, parkettás kapuszárnyakkal, mely 2020-ban teljes átalakításon, modernizáláson esett át.
A második emeleten, a tetőtérben kialakított lakás stílusos, csendes, minden részletében hangulatos és nagyon otthonos! PRÉMIUM minőségű anyagokkal kivitelezett, nagy terekből áll.

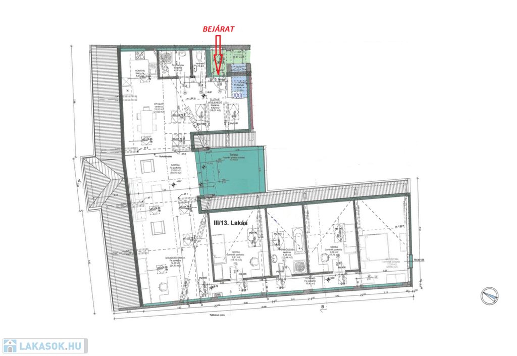
A lakás bruttó alapterülete 211 m2, nettó 125 m2, melyhez kapcsolódik egy 11 m2-es, nyugalmas tetőterasz.
Elosztása szerint egy impozáns, nagyméretű, egybenyitott nappali–konyha–étkező térrel, három hálószobával, két fürdőszobával, külön wc-vel, praktikusan kialakított gardróbszobával és egy nyugalmas belső udvarra néző tetőterasszal rendelkezik. A hirdetésben a fotók között található alaprajz részletes tájékoztatást ad az elrendezésről és a méretekről.

Főbb műszaki paraméterek:
• Modern, hűtő-fűtő klíma
• Energiatakarékos kondenzációs Vaillant gázkazán (fűtés, melegvíz)
• Kiváló minőségű burkolatok és szaniterek
• Egyedi, beépített konyha, magas minőségű konyhagépekkel
• Rengeteg a tetőtéri ablak a természetes fény miatt
• Jól összehangolt belső világítás a hangulat kedvéért
• Beépített szekrények és méretre szabott egyedi bútorok (ezek egyéni megbeszélés tárgyát képezik a vételáron felül)

Parkolás:
A ház előtt a parkolás ingyenes, mindig van hely.
200 méterre a lakástól 3 gépkocsi számára mélygarázs is eladó, akár egyenként is megvehető. (A hirdetési ár ezt nem tartalmazza)

Ez a lakás azonnal beleszeretős!
Eleganciát, kényelmet, minőséget, egyediséget sugall, olyan hely, ahol jó élni.

Győr-Újváros belvároshoz közeli része mára lassan ismét visszakapja régi státuszát, újra épített szép házaival, visszatér a polgári környezetbe. A sorozatos fejlesztések teszik dinamikusan fejlődő városrésszé. Valamikor a Kossuth Lajos utca volt az 1-es főút Győrön átvezető tengelye. A korábbi századokban a város meghatározó polgárai voltak az újvárosiak, akik kereskedelemmel, kézművesiparral, hajózással foglalkoztak. Ennek emlékét őrzi a burcsellákra hasonlító, a lakás nappali fagerendájának szerkezete is, de ezt élőben kell látni és átérezni!

Tiszta, rendezett társasház! Pároknak, családoknak vagy akár igényes befektetőknek is szívből ajánlom. Komoly érdeklődők jelentkezését várom, időpontegyeztetéssel rugalmasan megtekinthető.
Legyen ez az Ön álomotthona!
(További képekért és információkért kérem hívjon!)

Lakás részletei

Ár: 149 000 000 Ft
Méret: 125 négyzetméter
Azonosító: 11567685
Irodai azonosító: 830883
Erkély mérete: 11.00 négyzetméter
Építőanyag: Tégla
Fűtés jellege: Cirkó
Ingatlan állapota: Kitűnő
Komfort fokozat: Dupla komfort
Egész szobák: 4
Nappalik: 1

Egyéb jellemzők

  • Erkély
  • Garázs
  • Klíma
  • Lift
  • Pince
  • Kertkapcsolat

Videók (1)


Így keressen lakást négy egyszerű lépésben. Csupán 2 perc, kötelezettségek nélkül!

Szűkítse a lakások
listáját
Válassza ki a megfelelő
lakást
Írjon a hirdetőnek
Várjon a visszahívásra