Eladó lakás Galgahévíz 135 000 000 Ft

Leírás

CasaNetWork Gödöllő Ingatlaniroda kínálatában befektetőnek eladó 4 szintes, szerkezetkész épület Galgahévíz központjában.  

Hasznosítására  néhány elképzelés: IDŐS OTTHON, ORVOSI RENDELŐK, EGÉSZSÉGHÁZ, IRODAHÁZ, PANZIÓ, MUNKÁS SZÁLLÓ, BÉRLAKÁSOK, TÁRSASHÁZ

A település Pest megye keleti régiójában, az M3 autópályától 13 perc alatt elérhető. Szerethető, kedves, nyugodt kis falu, hagyományőrző, a Galga-menti népszokásokat tisztelő lakossággal.  A fővárossal rendszeres busz és vonatkapcsolat köti össze. (45 perc) Az ingatlan szomszédságában horgásztó, a Gödöllői dombság tájvédelmi körzete található; kirándulásra, rekreációra remek hely, amit tiszta, szmogmentes levegő övez. 

A faluközpont 200 m-re található az ingatlantól, ugyanakkor kis forgalmú mellékutcában fekszik. Az épület előtt és az ingatlan körül számos gépjármű parkolása megoldható. Az épület mögötti zárt telekrész parkosítással, tájépítészeti ötletekkel csodás parkká varázsolható. 

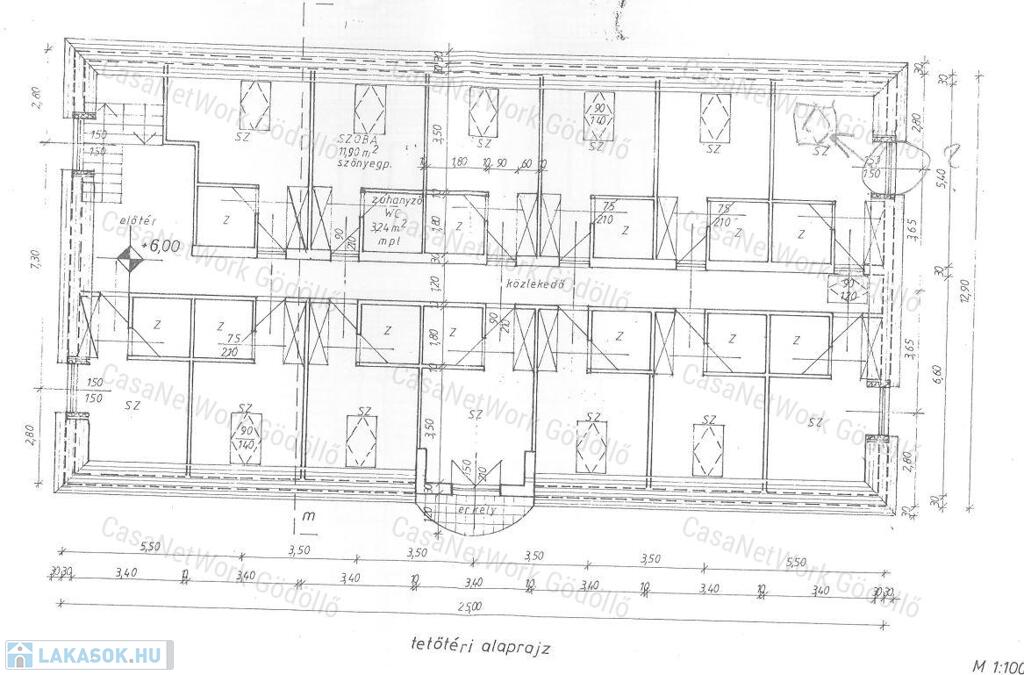
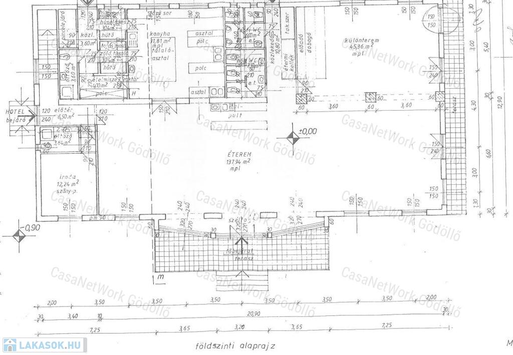
Az épület jellemzői: 

  • terv szerint, 2 szinten 25 szoba kialakítása kezdődött meg, mindegyik saját zuhanyzóval, WC-vel 
  • szuterénben és az első szinten közösségi terek, és kiszolgáló helyiségek 
  • jelenlegi készültsége kb 30%, a képen látható állapotban. Főfalak, válaszfalak állnak, tetőszerkezet és külső nyílászárók beépítve. 
  • falazata poroton tégla, betontálcás födémekkel
  • építési tervben 25 szoba/helyiség/lakóegység szerepel, ennek megfelelően lettek előkészítve válaszfalak, vizesblokkok
  • jelenleg kiépített gázüzemű fűtésrendszer csak az alsó szinten van
  • felsőbb szinteken lehetőség van a kor elvárásainak megfelelően megújuló energia felhasználására
  • az ingatlan körbe kerített
  • összközműves, 3x32A áram ellátással 

Az ingatlan jogi helyzete: tulajdonosa 1/1 tulajdoni hányadban egy kft. , teljes egészében per-, teher- és igénymentes. 

Ha van üzleti terve nézzük meg a helyszínen és tegyen ajánlatot! 

Ingyenes hitel tanácsadással, ügyvédi kapcsolattal és rugalmas időbeosztással állunk kedves ügyfeleink rendelkezésére! CASANETWORK - Ingatlanban otthon vagyunk

Lakás részletei

Ár: 135 000 000 Ft
Méret: 1 000 négyzetméter
Azonosító: 11202429
Irodai azonosító: 166401517
Építőanyag: Tégla
Ingatlan állapota:
Egész szobák: 25

Így keressen lakást négy egyszerű lépésben. Csupán 2 perc, kötelezettségek nélkül!

Szűkítse a lakások
listáját
Válassza ki a megfelelő
lakást
Írjon a hirdetőnek
Várjon a visszahívásra