Eladó lakás Érd, Érdliget, 248 000 000 Ft

Leírás

Érdligeti Luxus és Üzleti Lehetőség: Két lakás, egy hatalmas saját kert a Fürdő utcában és 4 privát parkolóhely a ház előtt.

Ez az ingatlan ritka kincs a piacon: ötvözi a családi házas szabadságot a társasházi kényelemmel és a professzionális üzleti megjelenéssel.
Ideális választás ügyvédi irodának, rendelőnek, kozmetikának vagy könyvelőirodának, miközben a másik felében zavartalanul élhet a család.

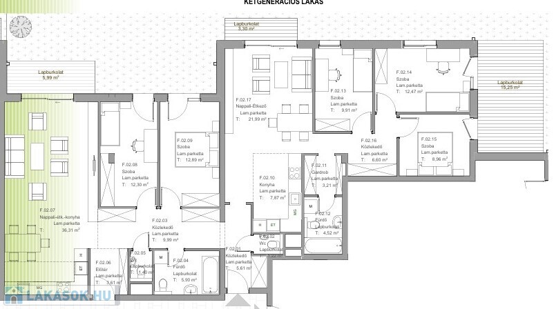
Eladó Érdliget legkedveltebb részén egy egyedülálló, összesen 164,3 m²-es, tégla építésű, kétgenerációs földszinti lakás.
Az ingatlan egy exkluzív, mindössze 7 lakásos társasházban található, és különlegessége, hogy két lakrészből áll, melyek igény szerint egybenyithatók vagy szeparálhatók.

Miért ez az ingatlan a legjobb választás?
1. Hatalmas saját élettér: A lakást egy 168 m²-es, saját használatú kert öleli körbe, melyet összesen 24,5 m²-nyi terasz egészít ki. Itt valóban élvezheti a zöldövezeti nyugalmat!
2. Igény szerint egy 164,3 m²duplakomfortos hatalmas lakás, VAGY két különálló lakrész
Nagyobb lakrész (82,53 m²): amerikai nappali + 3 külön bejáratú hálószoba, melyből 3 helyiség közvetlen kertkapcsolatos.
Kisebb lakrész (81,74 m²): amerikai nappali + 2 külön bejáratú hálószoba, ahol minden egyes helyiségből kiléphetünk a saját kertbe.
3. Vállalkozásra is tökéletes: A két lakrész nemcsak a főbejáraton, hanem a teraszajtókon keresztül is külön megközelíthető.
4. Prémium parkolás: Az ügyfelek kényelmét a ház előtt található 4 saját parkolóhely biztosítja, ami a vételárban benne foglaltatik.

Főbb jellemzők:
• Helyszín: Érd, Érdliget (kiváló közlekedés és infrastruktúra)
• Állapot: Új építésű, világos, tágas terek
• Kert: 168 m² saját zöldterület
• Műszaki tartalom: A+ (2024-es) hőtechnikai besorolás, hőszivattyús mennyezeti hűtés-fűtés, padlótemperálás, 15 cm-es hőszigetelés, 3 rétegű nyílászárók.
• Gazdaságosság: H-tarifa, egyedi mérőórák, rendkívül alacsony rezsi.

Prémium szolgáltatások:
• Okosotthon: Távolról, telefonról vezérelhető hűtés-fűtés alaprendszer.
• Biztonság: Videókaputelefon, kamerahálózat (CCTV), hanggátló biztonsági ajtók és falak.
• Kényelem: Liftes ház, akadálymentes közlekedés, közösségi kerékpártároló.
• Garázs: Teremgarázs beálló elektromos autótöltési lehetőséggel (1 beálló vásárlása kötelező + 8.000.000,-Ft.).

KIVÁLÓ LOKÁCIÓ ÉS INFRASTRUKTÚRA:
Budapest-Diósd-Érd hármas határánál, remek közlekedéssel:
• Tömegközlekedés: 5 buszjárat (710, 712, 715, 720, 722) sétatávolságra.
• Családbarát: Kincses óvoda a közelben, iskola mindössze két utcányira.
• Bevásárlás: Lidl, bicikli bolt és szerviz a közvetlen közelben.

Ez az ingatlan tökéletes választás összeköltöző generációknak, vagy azoknak, akik prémium környezetben, a lakásuk mellett szeretnék üzemeltetni vállalkozásukat.

Irányár: 248.000.000,- Ft

Az ingatlan 2026.júniustól költözhető.

Lakás részletei

Ár: 248 000 000 Ft
Méret: 164 négyzetméter
Azonosító: 11611025
Cím: Fürdő u.
Városrész: Érdliget
Emelet: Földszint
Építőanyag: Tégla
Fűtés jellege: Hőszivattyú
Ingatlan állapota: Épülő
Komfort fokozat: Dupla komfort
Építési év: Új építésű
Elhelyezkedés: Társasház
Tulajdonviszony: Saját
Bútorozott: Nem bútorozott
Kert: Saját kert
Egész szobák: 5
Nappalik: 2

Egyéb jellemzők

  • Erkély
  • Garázs
  • Klíma
  • Lift
  • Kertkapcsolat
  • Tároló
  • Kocsibeálló

Térkép


Így keressen lakást négy egyszerű lépésben. Csupán 2 perc, kötelezettségek nélkül!

Szűkítse a lakások
listáját
Válassza ki a megfelelő
lakást
Írjon a hirdetőnek
Várjon a visszahívásra