Eladó lakás Dunaharaszti 94 785 000 Ft

Leírás

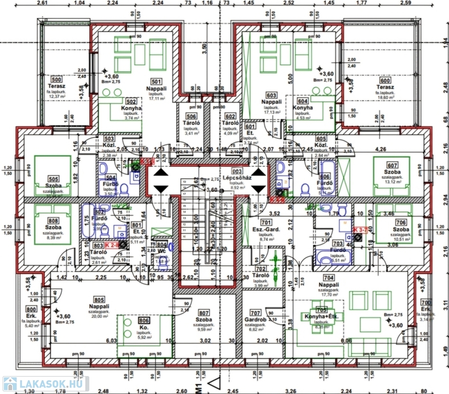
Dunaharaszti egyik legkedveltebb részén, a csendes, családias Bezerédi lakóparkban kínáljuk eladásra ezt az AMERIKAI KONYHÁS NAPPALI + 2 HÁLÓS, 3,14 m2-es TERASSZAL rendelkező lakást egy magas minőségű anyagokkal megépített, évtizedes referenciákkal rendelkező beruházó által kivitelezett 8 lakásos társasházban.

Minden lakás külön albetét lesz, tehát saját helyrajzi számmal rendelkeznek.
Az emeleti mindegyikéhez tartozik 2 db. saját kültéri beálló is.

Általános műszaki jellemzők:
- Porotherm 30 klíma kerámia teherhordó falak 10 cm Austrotherm Grafit 80 külső szigeteléssel
- Porotherm 30 AKU Z válaszfalak (30 cm vastag hanggátló falazóelem)
- a meleget a padlófűtés, a hűtést (a fűtésre is használható) fan-coil rendszer biztosítja
- a lakás riasztóval felszerelt
- napelem előkészítés

Minden lakáshoz tartozik egy saját fűthető tároló is.

A hálószobák melegburkolatot, a többi helyiség hidegburkolatot kap.

A lakóparkban épült új sportpark számos lehetőséget nyújt a sportolni, pihenni vágyóknak.

Részletes műszaki adatokért, egyéb információkért az ingatlannal kapcsolatban keressen bizalommal, akár hétvégén is!

Lakás részletei

Ár: 94 785 000 Ft
Méret: 63 négyzetméter
Azonosító: 11595486
Irodai azonosító: 392157
Cím: Haraszty Ferenc utca
Emelet: 1. emelet
Építőanyag: Tégla
Fűtés jellege: Hőszivattyú
Ingatlan állapota: Kitűnő
Komfort fokozat: Összkomfort
Építési év: Új építésű
Tulajdonviszony: Saját
Kilátás: kertre néző
Egész szobák: 3

Egyéb jellemzők

  • Erkély
  • Garázs
  • Lift
  • Pince
  • Tároló

Térkép


Így keressen lakást négy egyszerű lépésben. Csupán 2 perc, kötelezettségek nélkül!

Szűkítse a lakások
listáját
Válassza ki a megfelelő
lakást
Írjon a hirdetőnek
Várjon a visszahívásra