Eladó lakás Debrecen 94 699 000 Ft

Leírás

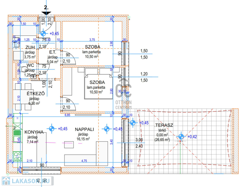
Ez az ingatlan a földszinten helyezkedik el, hasznos alapterülete : 60,63 m2 +26,65 m2 terasz + 43 m2 kertkapcsolattal.
Konyha - étkező - nappali + 2 szobás, külön fürdővel, wc - vel.
Projekt bemutatása

Debrecen, Kenézy kórház közelében, 8 lakásos társasház, 8 nagyméretű garázzsal eladó.
A lakások kiváló lehetőséget nyújtanakazoknak, akik modern, kényelmes életteret keresnek kertvárosi környezetben.
Elhelyezkedése : tudom, lerágott csont, de valóban közel található a BMW - hez, de egyúttal a belvároshoz is.
Műszaki jellemzői :
- Házközponti fűtés, lakásonként egyedileg szabályozható, illetve egyedileg mért.
- Veismann kondenzációs turbókazánnal / vagy hőszivattyúval, padlófűtés, mennyezet hűtéssel
- Ablakok 6 légkamrás , 3 rtg szigetelet műanyag
- Egyébként minden elemében modern, szinvonalas építés, megbízható beruházó - kivitelezőtől
Lakások : 4 db földszinti lakás terasz kapcsolattal , + 4 db 1. emeleti lakás erkély kapcsolattal.
Garázsok mérete : 20,55 m2 - 47,37 m2 - ig.
Minden kedvezmény igénybevehető : CSOK, CSOK HITEL, stb.
Várható átadása : 2025. nyár
Ha felkeltettem az érdeklődést, kérem hívjon bizalommal !!

Lakás részletei

Ár: 94 699 000 Ft
Méret: 61 négyzetméter
Azonosító: 11427592
Emelet: Földszint
Építőanyag: Tégla
Fűtés jellege: Cirkó
Ingatlan állapota: Kitűnő
Kilátás: udvari
Egész szobák: 3

Egyéb jellemzők

  • Erkély
  • Garázs
  • Lift
  • Kertkapcsolat
  • Tároló
  • Kocsibeálló

Így keressen lakást négy egyszerű lépésben. Csupán 2 perc, kötelezettségek nélkül!

Szűkítse a lakások
listáját
Válassza ki a megfelelő
lakást
Írjon a hirdetőnek
Várjon a visszahívásra