Eladó lakás Debrecen 89 900 000 Ft

Leírás

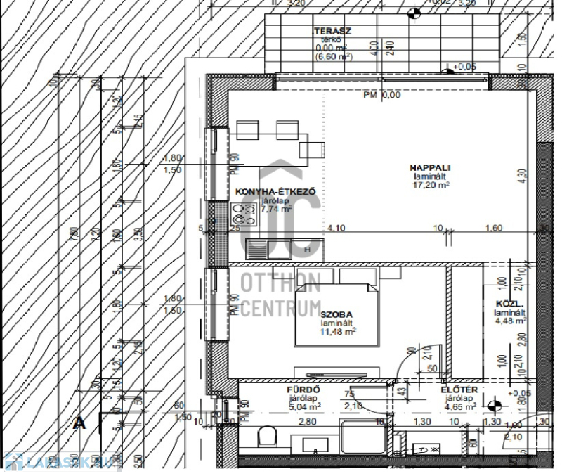
Debrecen, Széchenyi kerti kertkapcsolatos, 51 nm-es, nappali, étkező-konyhás, 1 hálószobás, klímás, nagy teraszos, 250 nm-es saját kertel rendelkező, új építésű modern, bútorozott, gépiesített társasházi lakás eladó.
A lakáshoz önálló 21 nm-es garázs , 2 udvari autóbeálló és egy tároló tartozik, melynek megvásárlása kötelező ára 20 Millió forint.

Lakás részletei

Ár: 89 900 000 Ft
Méret: 51 négyzetméter
Azonosító: 11417362
Emelet: Földszint
Építőanyag: Tégla
Fűtés jellege: Cirkó
Ingatlan állapota: Kitűnő
Kilátás: udvari
Egész szobák: 2

Egyéb jellemzők

  • Erkély
  • Garázs
  • Lift
  • Kertkapcsolat
  • Tároló
  • Kocsibeálló

Így keressen lakást négy egyszerű lépésben. Csupán 2 perc, kötelezettségek nélkül!

Szűkítse a lakások
listáját
Válassza ki a megfelelő
lakást
Írjon a hirdetőnek
Várjon a visszahívásra