Eladó lakás Debrecen, Belváros, 81 201 000 Ft

Leírás

Debrecen abszolút Belvárosában, a Nagytemplomhoz közeli részén kerül kivitelezésre ez az egyedi tervezésű, 17 lakásos, liftes társasház.
Válasszon a piacon legkeresettebb méretű,még elérhető 35-51 nm-es, loggiás, nappali +1 vagy 2 szobás lakáskínálatból!
A 4 emeletes társasház két utcáról is megközelíthető, a lakások kiváló elrendezésűek.
Gépkocsi beállók ( 10 Mft/db) a földszinten és a -1 szinten találhatók.
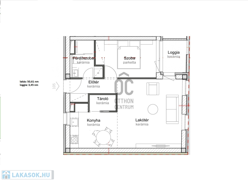
Ez az 2. emeleti lakás 49,47 nm-es, nappali-étkező-konyha +1 szobás, 6,03 nm-es loggiával. Nappali+ 2 szobássá alakítható.
Műszaki adatok:
- teherhordó falak Porotherm 30 N+F
- belső térelválasztó falak gipszkartonból
- hőszigetelése 15 cm THERMODAM rendszer, 1,5 cm nemes vakolattal
- házközponti hőszivattyús fűtés, minden helyiségben padlófűtés
- lakásonként egyedi hőmennyiség mérő
- hűtés: hőszivattyús rendszerrel, vagy AUX hőszivattyús 2,7 kw-os klímával
- műanyag nyílászárók 3 rétegű hőszigetelt üvegezéssel
- beépített elektromos, távirányítós redőnyök
- 90X200-as üvegfalú zuhanyózó
A belvárosban található ingatlan pár perc sétára van a Nagytemplomtól, a Piactól és a Bevásárló központoktól.
Projekt bemutatása

--

Lakás részletei

Ár: 81 201 000 Ft
Méret: 51 négyzetméter
Azonosító: 11609152
Városrész: Belváros
Építőanyag: Tégla
Ingatlan állapota: Kitűnő
Kilátás: utcai
Egész szobák: 2

Egyéb jellemzők

  • Erkély
  • Garázs
  • Lift
  • Kertkapcsolat
  • Tároló
  • Kocsibeálló

Így keressen lakást négy egyszerű lépésben. Csupán 2 perc, kötelezettségek nélkül!

Szűkítse a lakások
listáját
Válassza ki a megfelelő
lakást
Írjon a hirdetőnek
Várjon a visszahívásra