Eladó lakás Debrecen 76 950 000 Ft

Leírás

FIGYELEM !!!
A FELTÜNTETETT ÁR, A SZERZŐDÉSKOR KIFIZETETT TELJES VÉTELÁR ESETÉN ÉRVÉNYESÍTHETŐ, EGYÉB , ÜTEMEZETT FIZETÉS ESETÉN AZ ÁR VÁLTOZIK, ERRŐL KÉREM, KÉRJEN FELVILÁGOSÍTÁST !!
Az ingatlan az 1. emeleten helyezkedik el, 54,75 m2 alapterületű + 7,5 m2 erkély tartozik hozzá.
Projekt bemutatása

Debrecen kedvelt kertvárosias részén épül egy új projekt.
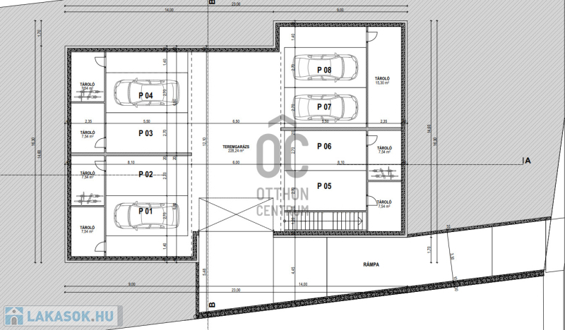
7 lakásos társasház, földszint + emeleti kialakítással, garázsok pince szinten .
A lakások önálló helyrajzi számmal rendelkeznek !!!
Várható átadás : 2026. év vége
Műszaki jellemzői : a jelen kor legmodernebb építési technológiájával épül, Pl : fűtés : levegő - víz hőszivattyú padlófűtéssel, lakásonként + egy klíma, B30 - as tégla fal , homlokzati szigeteléssel, stb...
A belső burkolatokat amíg van lehetőség az új tulajdonos kiválaszthatja.
Megbízható, rugalmas, korrekt cég a tulajdonos beruházó, aki kivitelező is egyben, rengeteg referenciával rendelkezik.
Amennyiben felkeltettem az érdeklődését, kérem hívjon bátran , és bővebb felvilágosítást adok.

Lakás részletei

Ár: 76 950 000 Ft
Méret: 55 négyzetméter
Azonosító: 11559382
Építőanyag: Tégla
Ingatlan állapota: Kitűnő
Kilátás: udvari
Egész szobák: 2

Egyéb jellemzők

  • Erkély
  • Garázs
  • Lift
  • Kertkapcsolat
  • Tároló
  • Kocsibeálló

Így keressen lakást négy egyszerű lépésben. Csupán 2 perc, kötelezettségek nélkül!

Szűkítse a lakások
listáját
Válassza ki a megfelelő
lakást
Írjon a hirdetőnek
Várjon a visszahívásra