Eladó lakás Debrecen 74 900 000 Ft

Leírás

Költözhető, felújított otthon Tócóvölgy szívében – ide csak beköltözni kell!

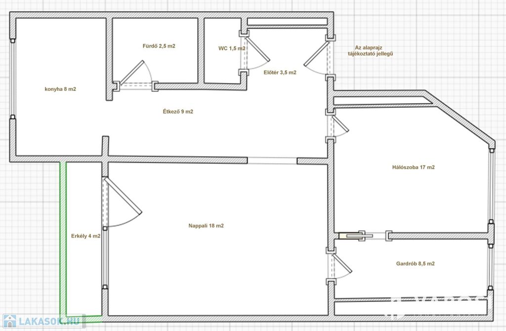
Debrecen közkedvelt részén, Tócóvölgyben, parkos, csendes környezetben eladó egy 71 m²-es, 1. emeleti, teljes körűen felújított, igényes és kifejezetten jó hangulatú, 4 m²-es erkélyes lakás.
A lakás tágas és praktikus elrendezésű: kényelmes nagyságú előszoba és étkező, minőségi gépekkel felszerelt konyha, tágas nappali + 2 külön nyíló szoba (egyik gardróbként funkcionál), külön WC és külön fürdőszoba, valamint a tágas erkély.

A felújítás során törekedtek a minőségre, amely az egész lakás hangulatában is visszaköszön. Több ponton záródó biztonsági ajtó riasztórendszerrel, műanyag, 2 rétegű ablakok redőnnyel és szúnyoghálóval, laminált padló a nappaliban és a szobákban és kerámia burkolatok az egyéb helyiségekben. A nappaliban ezen kívül minőségi szőnyeg is borítja a padlót, amely a lakók további kényelmét szolgálja.

A lakásban több beépített gardrób is található, de az igazi különlegesség az egyik szobából 2022-ben kialakított modern tolóajtós gardrób. Minden ablak zöld parkra néz, hatalmas ablakfelületekkel, világos és csendes lakás. Tájolása É-D.
Fűtés egyedi mérésű távfűtéssel, radiátoros hőleadás. A nappaliban hűtő-fűtő klíma is található. A közös költség 8500 Ft. A lakáshoz saját, zárható pince tartozik, valamint használható egy zárt kerékpártároló is. Parkolás a ház előtt és a környéken ingyenesen lehetséges.

Az ingatlan tehermentes, rendezett tulajdoni viszonyokkal, rövid időn belül bírtokba vehető. Igény szerint bútorozottan is eladó.
Tócóvölgy közkedvelt, mert minden kényelmesen elérhető: üzletek, gyógyszertár, iskola, óvoda, posta, buszmegállók, sőt közvetlen közelben van jégcsarnok is.

Ez az ingatlan kiváló választás azoknak, akik csak költözni szeretnének. Ajánljuk pároknak, egyedülállóknak, de befektetésnek is kiváló választás, hiszen a környék kedveltsége miatt könnyen kiadható.

További információkért kérem hívjon a hét minden napján. Megtekintés rugalmasan megoldható.
(További képekért és információkért kérem hívjon!)

Lakás részletei

Ár: 74 900 000 Ft
Méret: 71 négyzetméter
Azonosító: 11579674
Irodai azonosító: 735136
Erkély mérete: 4.00 négyzetméter
Építőanyag: Panel
Fűtés jellege: Távfűtés
Ingatlan állapota: Felújított
Komfort fokozat: Összkomfort
Egész szobák: 2
Fél szobák: 1
Nappalik: 1

Egyéb jellemzők

  • Erkély
  • Garázs
  • Klíma
  • Lift
  • Pince
  • Kertkapcsolat

Így keressen lakást négy egyszerű lépésben. Csupán 2 perc, kötelezettségek nélkül!

Szűkítse a lakások
listáját
Válassza ki a megfelelő
lakást
Írjon a hirdetőnek
Várjon a visszahívásra