Eladó lakás Debrecen, Belváros, 72 900 000 Ft

Leírás

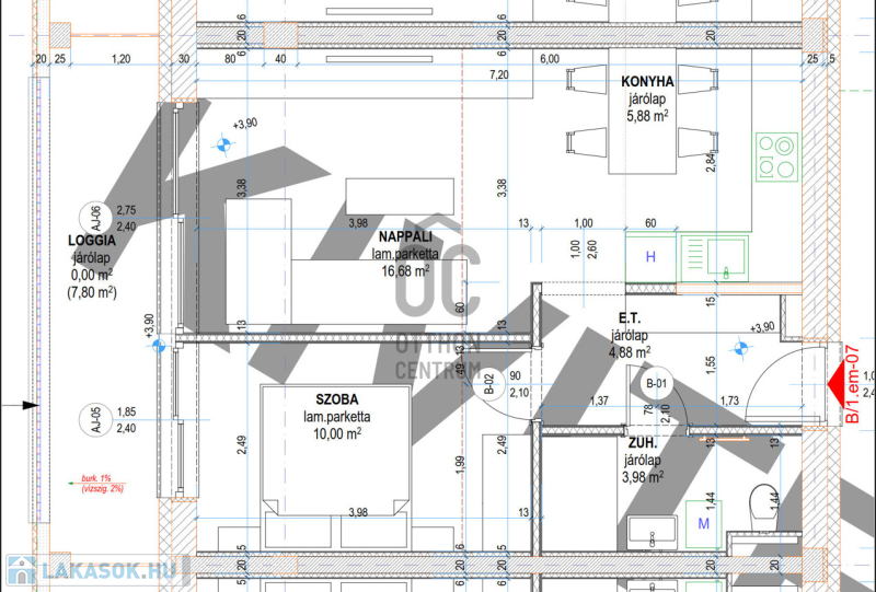
Ez az ingatlan az " B " épület .1. emeletén található.
Projekt bemutatása

Debrecen belvárosában, 76 lakásos társasház épül.
Az építkezés folyamatban van, várható átadása : 2025 év vége.
A kivitelező - tulajdonos megbízható, korrekt cég, nagyon sok referenciával rendelkezik.
Nagyon modern " kis " lakópark a belvárosban, nagy odafigyeléssel, minőségi anyagokból készül, előtérbe helyezve a leendő tulajdonosok kényelme.
Jellemzői :
- 76 db lakás + 8 üzlethelyiség
- hőszivattyús hűtés - fűtés, lakásonként egyedi mérővel
- szigetelt külső falazat
- hőszigetelt nyílászárók
- magas energetikai hatékonyság, alacsony rezsi
- liftes társasház
- teljes beépítetlen terület parkosított
- közlekedő utak, járdák térkővel burkolva
- gépjármű tárolása épületen belül, pinceszinten megoldott
- szakaszos fizetés
- stb.......
Minden kedvezmény igénybe vehető, pl : CSOK, kedvezményes CSOK hitel, 5% ÁFA visszatérítés CSOK vásárlás esetén, stb...
Mindent is nem tudok leírni, de amennyiben felkeltettem az érdeklődését, kérem hívjon bizalommal, és átbeszéljük.

Lakás részletei

Ár: 72 900 000 Ft
Méret: 41 négyzetméter
Azonosító: 11559734
Városrész: Belváros
Építőanyag: Tégla
Ingatlan állapota: Kitűnő
Kilátás: udvari
Egész szobák: 2

Egyéb jellemzők

  • Erkély
  • Garázs
  • Lift
  • Kertkapcsolat
  • Tároló
  • Kocsibeálló

Így keressen lakást négy egyszerű lépésben. Csupán 2 perc, kötelezettségek nélkül!

Szűkítse a lakások
listáját
Válassza ki a megfelelő
lakást
Írjon a hirdetőnek
Várjon a visszahívásra