Eladó lakás Debrecen, Belváros, 66 275 200 Ft

Leírás

Projekt bemutatása

Debrecen Belvárosában épült, 15 lakásos társasházak kivételes lehetőséget kínál mindazok számára akik a belvárosi élet előnyeit szeretnék élvezni.

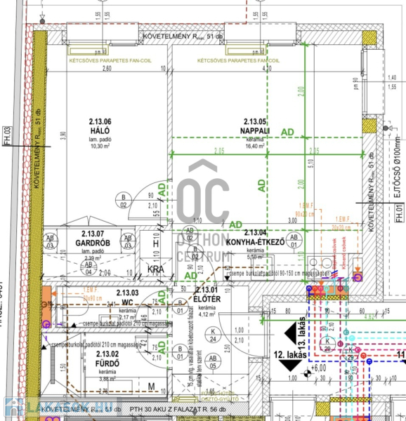
A modern megjelenés és a magas minőségű kivitelezés mellett a tágas, jól átgondolt alaprajzok biztosítják a kényelmes életteret. A 42 - 100 nm lakások nagy üvegfelültekkel készültek, és minden lakás erkélykapcsolattal rendelkezik. A nagyméretű üvegfelületeknek köszönhetően a terek természetes fénnyel telnek meg, míg a tágas erkélyek nyugalom és a kikapcsolódás színterét biztosítják.

A tervezés során kiemelt szempont volt az energiahatékonyság és a lakók komfortja. Ennek érdekében hőszivattyús hűtés - fűtés, minőségi nyílászárók, valamint elektromos autók töltésére alkalmas lehetőség is kialakításra került.

A lakások akár már juniusi költözéssel birtokba vehetők. Az ingatlanok teljes körűen, ízlésesen bútorozottak: prémium minőségű konyhabútor, étkező, nappali berendezés, valamint beépített előszoba és gardrószekrények biztosítják a harmónikus és praktikus életteret.

Amennyiben az ingatlan felkeltette érdeklődését, kérdése van, vagy szeretné megtekinteni, hétvégén is szívesen fogadom hívását!

Lakás részletei

Ár: 66 275 200 Ft
Méret: 44 négyzetméter
Azonosító: 11615799
Városrész: Belváros
Építőanyag: Tégla
Ingatlan állapota: Kitűnő
Kilátás: kertre néző
Egész szobák: 2

Egyéb jellemzők

  • Erkély
  • Garázs
  • Lift
  • Kertkapcsolat
  • Tároló
  • Kocsibeálló

Így keressen lakást négy egyszerű lépésben. Csupán 2 perc, kötelezettségek nélkül!

Szűkítse a lakások
listáját
Válassza ki a megfelelő
lakást
Írjon a hirdetőnek
Várjon a visszahívásra