Eladó lakás Debrecen 63 000 000 Ft

Leírás

Projekt bemutatása

Debrecen – Hatvan utcai kert
Modern, energiahatékony újépítésű lakások eladók – már csak 3 lakás leköthető!

Debrecen nyugati, kertvárosias részén, a Hatvan utcai kertben épül a 3 ütemes, 21 lakásos modern társasház következő épülete.
A 3. ütemből már csak 3 lakás elérhető!

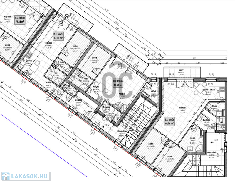
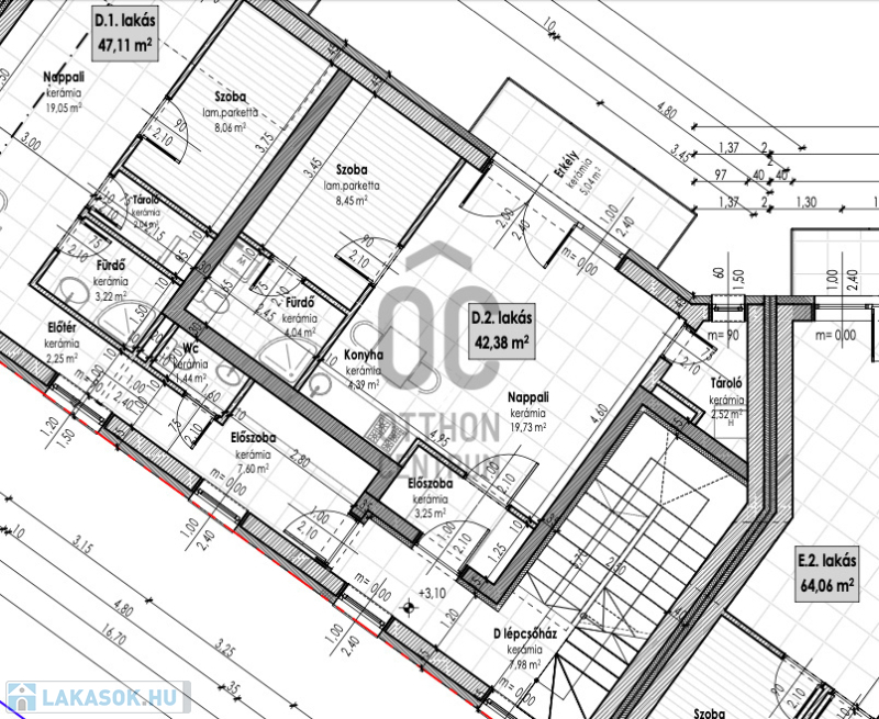
Lakások
41,9–81,8 m² alapterület
minden lakáshoz erkély/terasz
földszinti lakások saját kerttel
ideális első otthonnak, családoknak vagy befektetésnek

Műszaki tartalom
AA+ energetikai besorolás
hőszivattyús mennyezetfűtés–hűtés + padlófűtés
Porotherm 30 N+F tégla
15 cm grafitos hőszigetelés
3 rétegű, argon töltésű nyílászárók
alacsony rezsiköltség
Burkolatok
hidegburkolat: 9 000 Ft/m²
melegburkolat: 5 000 Ft/m²
Konyhabútor nincs az árban.
Az ár kulcsrakész állapotra vonatkozik.

Garázsok
A földszinten 21 db, 18 m²-es garázs épül
Irányár: 13 M Ft

Lokáció
csendes, kertvárosias környezet
gyors belvárosi megközelítés
kiváló infrastruktúra
hosszú távon értékálló környék

Építkezés és átadás
építkezés kezdete: várhatóan 2026 január
műszaki átadás: 2026. III–IV. negyedév

Finanszírozás
készpénz
hitel
CSOK igényelhető
Már csak 3 lakás maradt – gyorsan fogynak a helyek!
További információért, alaprajzokért vagy egyeztetésért várom hívását!

Lakás részletei

Ár: 63 000 000 Ft
Méret: 42 négyzetméter
Azonosító: 11583877
Építőanyag: Tégla
Ingatlan állapota: Kitűnő
Kilátás: udvari
Egész szobák: 2

Egyéb jellemzők

  • Erkély
  • Garázs
  • Lift
  • Kertkapcsolat
  • Tároló
  • Kocsibeálló

Így keressen lakást négy egyszerű lépésben. Csupán 2 perc, kötelezettségek nélkül!

Szűkítse a lakások
listáját
Válassza ki a megfelelő
lakást
Írjon a hirdetőnek
Várjon a visszahívásra